ARCHITECTS
General Architecture
PHOTOGRAPHS
Mikael Olsson
YEAR
2009
LOCATION
Sweden
CATEGORY
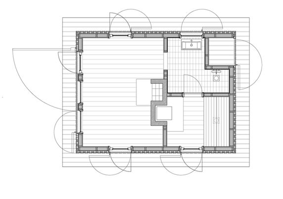
Sauna
Text description provided by architect.
The small building is built as a uniform volume, clad in larch wood.
When not in use the house is completely closed, giving it an appearance of the archetypal house. When open, the warm un-weathered finish of the larch gives the sauna a friendly and welcoming character.

T +46 8 6581680
General Architecture
Skeppsbron 28, 111 30 Stockholm, Sweden










