
Ayen Clinic
ARCHITECTS
Felipe Assadi + Francisca Pulido
YEAR
2009
LOCATION
Talca, Chile
CATEGORY
Dental Clinic
The dental clinic Ayen is inserted into the central grid of the city of Talca, an area with an obvious state of disrepair and with a very poor quality of construction, delivering a fragmented and discontinuous environment, whose regulation was in flux at the time of the project.
Thus, like the work of dentists who "repair" the damaged parts, this project is proposed as an element that tries to repair one of these damaged situations, one of the unbuilt corners of the city center which will follow the new building guidelines devised at the time of the project.
But at the same time, following the analogy of the work of dentists, this piece will be, as a tooth, an element whose shape not only responds to the place where it is located, but also to the program it contains, so as not to pretend to be anything other than the representation of that which it contains:
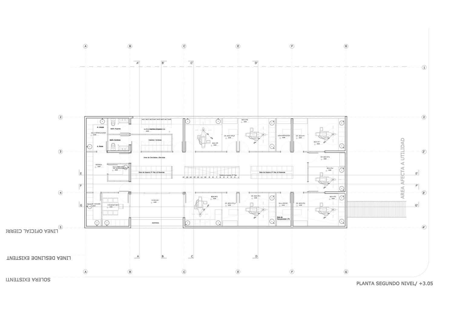
As the boxes do not need windows to the street, in order to maintain some privacy for patients, natural light and ventilation are at the ceiling level, thus generating an opaque and solid volume to the city.
8 separate boxes with their waiting rooms and x-ray rooms, a small laboratory and a hall, spread over two levels.
In addition to the above, and to dramatize the idea of a single, monolithic piece, it is completely clad in white tile, the result of cutting a 30 x 30 cm ceramic tile, which gives a plastic and clean character the building.















