
Detached House in Uccle
ARCHITECTS
L'Escaut Architectures
PHOTOGRAPHS
Sarah Van Hove
AREA
180.0 m2
YEAR
2009
LOCATION
Brussels, Belgium
CATEGORY
Houses
A PIECE OF COUNTRYSIDE
When Laurence and Nathalie acquired the plot, the project was already started: the foundation slab was poured and a planning permission was submitted.
One more constraint was the difficult access to the site, located at the back of gardens in a residential area.
The planning permission is clear: the new project has to stick to the size of the previous one, and to the choice of a wooden material to reduce fears of a building in the inner area of a building block. contemporary forms.
The site is a piece of countryside where two isolated buildings were already erected. The watchword: modesty and respect for this fragile environment. The Municipality of Uccle was favourable to the construction of an architecture project with
STRUCTURE AS FINISHING
Laurence and Nathalie knew what they wanted. These wishes took directly a very graphic design and direct expressions, without ornaments.
A passive house entirely made of wood was abandoned with regret: it was not compatible with the budget.
The starting point was to consider the structure as a finishing in itself, to hide nothing, and to respect the desire of a house where the raw is coupled with a flawless execution.
The expression of structural pots and beams was simply softened with a layer of white paint. This gives the surface a texture, in response to the polished concrete floor slab.
A METICULOUS CONCRETE WORK
Besides wood, concrete was another dream of the owners: the screed, the staircase and the worktable of the kitchen were poured on site.
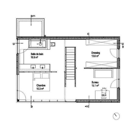
The staircase is a floating object and responds to the double desire to free space on the ground floor and to open views that lead to the glass windows. Centrally placed, it organizes circulation and articulates the maximized rooms.
The kitchen could therefore take the same size as the living room (Laurence owns a restaurant in the center of Brussels), while on the first floor, the bathroom made of mortex (a mixture of plaster and colored resin) takes a volume at least equivalent to that of the bedroom.
A WOODEN ENVELOPE
Like a second skin, six sliding screens - built from untreated larch wood slats with the height of the wall (about 6m) - for the glass windows and extend the openwork wood siding.
The screens are necessary for the curtain wall in the southwest, they give rhythm to the two facades and create intimacy. The house opens and closes fully or partially, depending on the needs. When the house opens, the garden becomes a living space, a natural extension of the house.


















