
St Alfred’s Church
ARCHITECTS
Studio B Architects
LOCATION
Nunawading, Australia
CATEGORY
Churches
AREA
1516.0 m²
PROJECT YEAR
2009
PHOTOGRAPHS
Aaron Pocock
Concepts of sustainable design are often given media attention though startling innovations and avant-garde design.
However, it is those projects that at first not recognized, but though the ’test of time’ prove themselves to be innovative and appealing to work and visit are worthy of discussion.
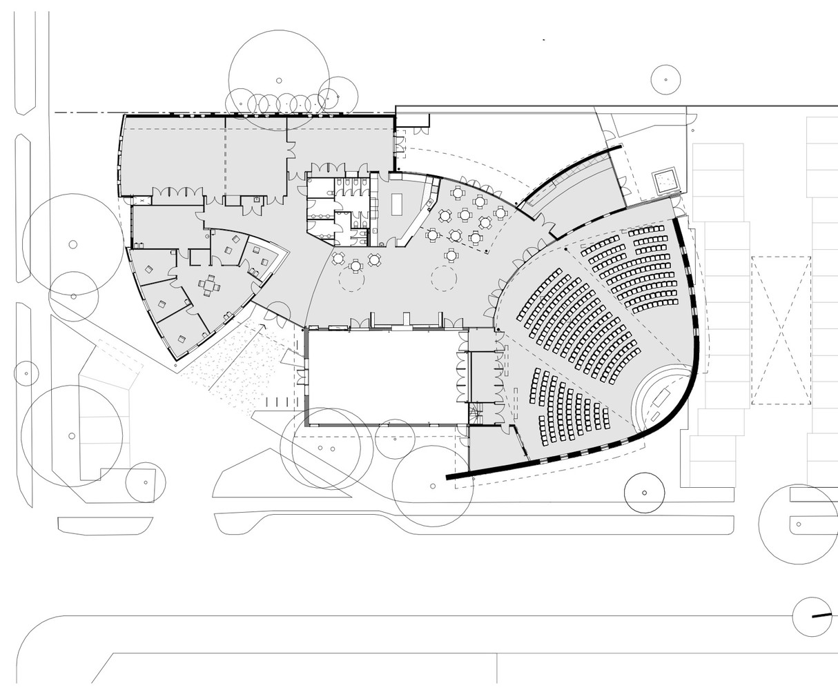
The St Alfred’s Church complex is one such project. Located in the leafy Melbourne suburb of North Blackburn the building is a composite of tested ideas combined about welcoming planning and design. This church and educational building is an expansion of an earlier small building that had occupied the site for the past forty-five years.
The building provides an embrace to auditorium users, a welcoming entry for the local community and distinctive way finding landmark. The design also incorporated reuse of an existing principal building on the site, recycled for use as meeting-rooms.
Within the tight project budget, sustainable design features have been incorporated to reflect the client’s concern to care for the planet. Natural cooling and solar heating and a deliberate provision of thermal mass create comfortable conditions all year round. Collected storm water assists with cooling and provides water for the adjacent council tennis courts as a ‘good neighbour’.
The design underwent an appeal process for approval of shared car-parking and for height in relation to the surrounding built environment.
The external aesthetic and symbolism of the building is distinctively Christian with cross, rock and fishing boat metaphors. It presents a positive termination to Williams Road and flags the corner of the North Blackburn Activity Centre group.
The main entry intentionally faces the shopping centre, inviting the community into the Church. Spatially the building addresses the road corner by directing the viewer’s eye by the external flow of the buildings’ façade. This serves to avoid any suddenness of built form in relation to the neighbourhood.
The side of the building again lets the eye flow past the building to the open space of a public walkway and to the local sport clubs Tennis Courts beyond. It is through this treatment of space that the buildings proportions-aligns itself to the predominantly residentially occupied streets.
The external envelope is visually stratified through use of building materials that emphasize the sheltering quality. Sustainably sourced hardwood cladding creates an enclosing box containing the offices and community rooms. Again sheltering by function and connotations of shape. A 400mm thick rammed earth wall to the end of the worship auditorium through its shape, softness of texture and colour embraces the congregation.
Externally it creates an appealing corner to the building and auditorium within. The choice of the use of rammed earth as a building material is not typical within the suburb, Melbourne nor Church buildings per-say.
The choice of this material was based on a range of complementing conditions; having exceptional thermal performance; acoustical deadening effect and quality of the aesthetic.
It is through the external aesthetic that the building’s technology is not immediately obvious. Through the use of thermal mass and natural ventilation the building is able to cope with a variance of degree days to control the interior thermal environment, giving comfort to workers and users alike.
The use of thermal mass has been achieved through the use and spatial placement of the rammed earth walls and expressing of exposed concrete block walls to the interior.
It is the nature of these materials that allows for absorption of both moisture and heat. However it is the hidden mass water storage and under-ground cooling labyrinth that allows the building to function.
Cooling of the interior environment is via ducted air from a large intake grille on the shaded south elevation, beneath the building to supply the auditorium. Beyond the grille is a shaded and irrigated landscaped area to pre-cool the air. It is this area that is watered from rainwater collected from the main roof. Large ducts run the length of the building beneath the concrete floor slab into a subterranean plenum space.
Here a hydronic heat exchanger further cools the passing air by water from the storm water tank. Ducts convey this air to 10 openings fitted with floor grilles for discharge into the space. Post evaluation has shown internal temperature peaks held to 14-150C below external during hot weather with a time lag of around 7hrs.
The heating system is activated by ‘evacuated tube’ solar panels, facing north on the roof with a gas-fired booster to drive the hydronic heating and hot water service. Hydronic radiator panels are placed about the interior except to auditorium where finned tubes are located in floor pits with rock baskets (for thermal mass) and with gratings over to allow convected heat into the space.
A solar chimney that is integrated into the south ‘blade’ activates this system. This is heated by glazing facing north that warms the base of the blade warming the air to create a ’chimney’ effect, discharging the hot air from the open top of the blade. The blade also serves as local landmark and marker of the Church to the local community.
It is through this synthesis of technology and care that informed its materiality and aesthetic of humanity to the users and on-looking community. Time will still test the buildings function but is assured by its intelligent design to last through the stewardship of many hands.













