Terrace View Cafe
TERRACE VIEW CAFE
Studio | Durham Architects
ARCHITECTS
Studio | Durham Architects
PHOTOGRAPHS
Steve Hall at Heidrich Blessing, Christian Sauer
YEAR
2009
LOCATION
St. Louis, United States
CATEGORY
Coffee Shop
Text description provided by architect.
Terrace View Café has a special location within downtown St. Louis, Missouri’s newest urban park, Citygarden.
Studio | Durham Architects was invited into the Citygarden project to design a café building and a maintenance building on the site.
The café by Studio | Durham appears equally as notable and successful as the pieces of art within the sculpture park, but distinguishes itself as a building among art.
The café by Studio | Durham appears equally as notable and successful as the pieces of art within the sculpture park, but distinguishes itself as a building among art.
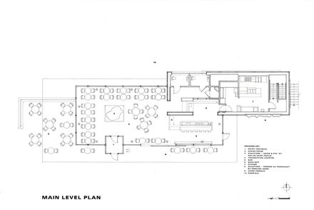
The Gateway Foundation asked Studio | Durham to create a café space to seat 100 customers, to incorporate a large bronze relief by Leger, and include space in the interior for a sculpture that must be protected from the elements.
After a few design iterations, Studio Durham settled on a Miesian glass and steel structure on a stone pedestal.
The café building has a strong solid base, but blends easily with the language of the park on the open upper level.
The stone pedestal hides the café kitchens on a lower level, and also serves as the mount for the Leger bronze relief. Above, a glass and steel box holds a large open dining space with the protected sculpture.
The simple, minimalist interior extends out through the glass onto a large terrace where the roof cantilevers out asymmetrically to protect outdoor seating from the harsh sun.
The café is located on the north-eastern corner of Citygarden, approachable from within the park or from the streets of St. Louis city.
The glass structure allows visitors relaxing views of the garden design and the sculptures placed throughout the park.
The Terrace View Café is a place to appreciate the art and the urban city life, but also a building to be appreciated on its own.






















