
Golden Crust Bakery
ARCHITECTS
Jackson Clements Burrows
LOCATION
Armadale, Australia
PROJECT YEAR
2009
AREA
800.0 m2
PHOTOGRAPHS
Shannon McGrath
Text description provided by architect.
This project involved an extensive re-furbishment of the Golden Crust Bakery in Armadale Melbourne. The original building fabric was retained and an extensive interior scheme was developed which engaged with the industrial history of the building.
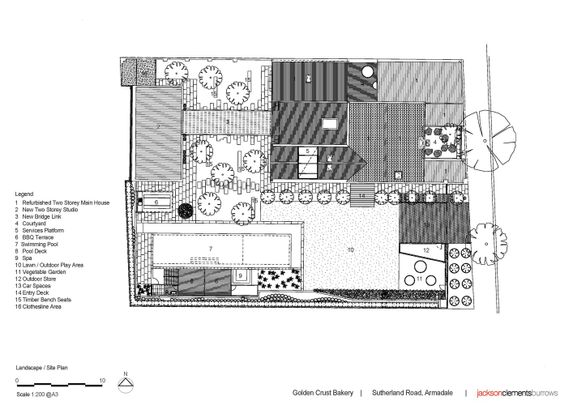
A new bridge was inserted which connected the two primary buildings providing a social connection between separated spaces.
This project commenced in 2006 as a residential warehouse fit-out of the former Golden Crust Bakery in Armadale.
In its more recent life the Golden Crust Bakery had suffered from a mock French provincial make over that was incongruous with the original architecture.
The building was in a state of serious deterioration and whilst it was perceived to have potential to meet our clients brief, the possibility of demolition was a serious consideration on the basis that the building was not protected by any heritage overlays.
Whilst our clients were attracted to the building because of its modest character, their primary attraction was the potential to address their expansive family accommodation requirements which included four children in their late teens (from a prior marriage), two recent children and regular visits from grandparents (who reside overseas). A “Brady Bunch” of sorts.
The clients made an early decision to commit to retaining the Bakery which was highly valued in the streetscape by the surrounding neighbours.
The project was approached on the common understanding between client and architect that the building would be re-invigorated with careful attention to appropriate detailing which would both preserve and enhance its semi-industrial appeal.
The client’s uncompromised commitment to the preservation and enhancement of the existing fabric provided the foundation for the project’s ultimate success.
The brief for the project was reasonably straightforward however the requirement for a combination of separation and social integration in a large family is often complex. In response, the brief was condensed into four basic zones:
- Parents (master bedroom accommodation on First floor and ground floor studies separated from Living areas).
- Family (an expansive congregational area for dining / living and kitchen areas – the heart of the house)
- Kids (upstairs in main building closer to Master Bedroom Areas)
- Teenagers (Rear former stables building separated from main house including three kids rooms, a guest room and rumpus area).
An important consideration associated with the creation of separate zones was the need to ensure that social integration was maintained and encouraged.
The primary device for achieving this integration was the introduction of a bridge which linked the first floor of the main building (young kids) and the first floor of the stables (teenage kids).
An exciting sculptural space which allowed the “littlies” to directly engage with the “biggies”…..on some days, reminiscent of young warrior and princess arm in arm crossing the draw-bridge to enter the haunted castle…
The physical separation of the teenage kids from the primary living areas (provided by passing over or under the bridge through covered outdoor space) also defines their growing sense of independence.
The bridge extends its function by providing important shading protection from both east and west sun.
Other ESD strategies include automated external shutters to all primary east and west facing glass, architectural sun-screening devices, VRV A/C systems, solar hot water systems, solar pool heating, automated electrical management and 120,000L of underground rainwater storage for use in toilets, pool and garden irrigation.



























