ARCHITECTS
Workshop Architecture|Design
AREA
10900.0 ft2
LOCATION
Tacoma, WA, USA
CATEGORY
Apartments
PROJECT YEAR
2009
Text description provided by architect.
Stadium 302 is a three-story, five-unit condominium building located in Tacoma’s Stadium District; a vibrant neighborhood with large historic single-family homes, walk-up apartments, modern residential midrise buildings, and an active retail center.
Faced with the developer’s 1,650 square foot program for each unit, a full top floor penthouse, and outdoor living space, the design finesses both the land use and building codes to provide maximal living area within strict limitations on building footprint and building height.
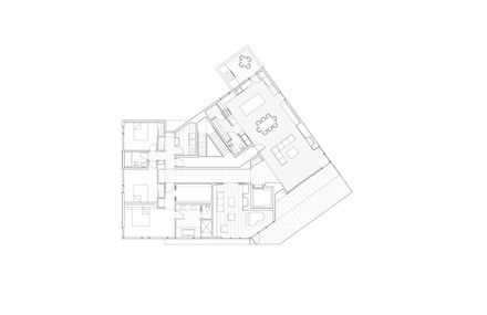
Careful unit planning allowed the project to be constructed with a single exit stairway which preserves valuable floor area for each dwelling.
The geometry of this single stairway is used to mediate tightly organized dwelling units and the irregular shape of the site.
Combined with the lobby and an outdoor terrace, it creates a complete acoustic separation between each dwelling.
The first and second floors each consist of two, two bedroom plus den dwelling units.
Floor to ceiling curtain wall and doors open the living spaces to the panoramic view. An interior pallet of walnut, limestone, and blackened metals is used through-out.
The scale and material of the building seeks to respond to the neighborhood’s historical character and its recent modernization. Concrete retaining walls, terraces, and foundations ground the project much as the rusticated granite of the nearby historic homes.
Though larger than the adjacent single family homes the design intent was to create a project that is legible as a single form.
This form is then inflected in response to overall site geometry, dwelling unit program, and view orientation.
Random width, vertical board on board cedar siding is used to define this overall body, or scale of the project. Horizontal reveals and the shifting alignment of siding between floors, introduce articulation, variation, and datums for building inflections.
While contemporary in its detailing, this building respects and enriches the scale of the transitioning urban district.

















