
Marronier Court
ARCHITECTS
Kengo Kuma & Associates
PHOTOGRAPHS
Daici Ano
AREA
2424.4 m2
YEAR
2009
LOCATION
Tokyo, Japan
CATEGORY
Shopping Center
Text description provided by architect.
We inserted a green eave into an aperture between the commercial building and the town. Our aim was how we could lighten and abstract the eave. First, we developed the stainless mesh structure, which we tried at our Green Shelter project near Hoshakuji Station. We rejected the combination of ‘bone and skin’ in steel, and made an eave with its skin alone could work as structure.
The length of the eave is 1600mm, and this itself is a cantilever. We secured strength by folding corrugated stainless net (φ5mm) in the pitch of 75mm×75mm, and anchored it to the wall without any secondary equipment. On top is trained an ivy-type plant extended from the frame of the building, so that the eave with high-level of transparency could be realized, feeling green even under the eave.
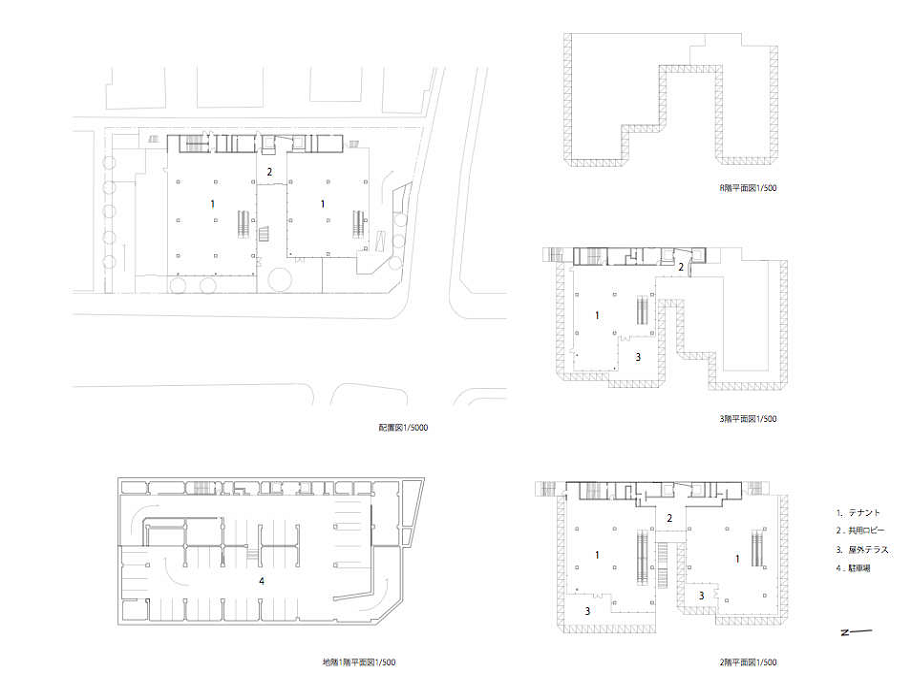
The green consists of Hedera, Carolina Jasmine, vine and blue passionflowers, each blooming in different times of the year. The eave also creates a shade underneath and gently shades the tenant shops of the building. The old Marronier Court had a large courtyard at the center of the building.
In our proposal for the reconstruction, space for the garden is deliberately scattered. It is allocated to each tenant of each floor, and together with the green eave, it horizontally expands further to the town. By the articulation of the building, the green continues, changing its face in good rhythm, combining shops and terraces, which has become a new kind of urban space.








