
Terraustral Oeste School
ARCHITECTS
Marsino Arquitectos Asociados - Jorge Marsino P., María Inés Buzzoni G.
PHOTOGRAPHS
Aryeh Kornfeld
YEAR
2009
CATEGORY
Schools
Text description provided by architect.
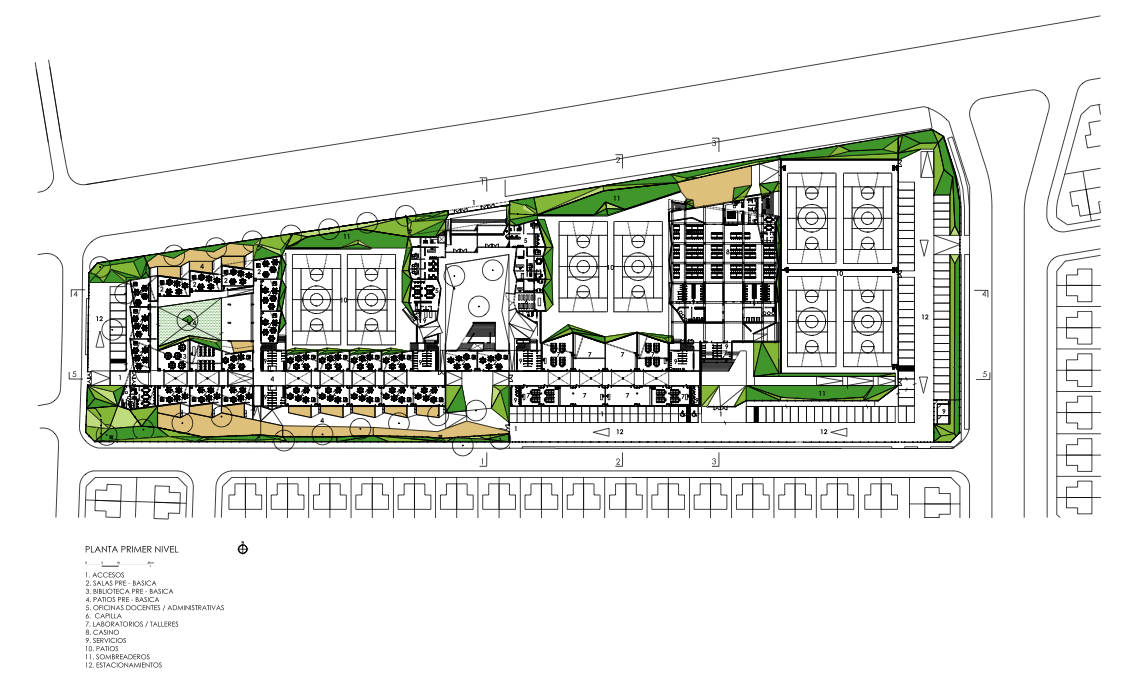
This Project, the second opening of Terraustral Schools in Maipú within two years, consists in a building for 3,400 students required to be built by stages, in relation to the enrolment demand.
Two strong conditions for the master plan were: the linear proportion of the site, with a north front of 300 m long towards West 4 Avenue, and the need of continuity between the new buildings.
The Project rises as a 4 storey block along a weaving path across a series of patios open alternately to the north and to the south.
This arrangement allows exposing the internal dynamic of the building, as intended with the 2008 project Terraustral Del Sol School.
With the intention of distinguishing the patios sequence, ground floor roofs were built as roof terraces in order to be considered as usable space.
These work as an outdoor extension of the second to fourth floors, as opposed to the playground of the ground floor.
The appearance of the Building is a continuation of the design for the School mentioned before.
The use of contrasts is repeated, in this case by the means of using exposed concrete and timber painted in three shades of green, in order to emphasize the main volumes of the building.
Currently, the building is undergoing the second stage of construction, expected to support the 2,600 students capacity of the first stage already reached after two years.



























