
Wallace. K Harrison Estate
CATEGORY
Houses
LOCATION
United States
Text description provided by architect.
Atop a hill on Long Island removed from the fog of the shoreline, architect Wallace K. Harrison in the early 1930s purchased land to design a house for his wife and himself.
However, after the purchase of the land, the young architect had inadequate funds to pay for construction.
Then, while touring the annual Architectural League show in Grand Central Palace, he paid around $1000 for what many consider the first prefab home, the Aluminaire House designed by A. Lawrence Kocher and Albert Frey.
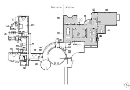
In 1931, Harrison designed what he considered a summer-use extension to the "Tin House" adding a series of circles, "an exercise in how to fit circles together".
Around 1940, the Tin House was relocated on the property and a second, linear wing with bathrooms and baths was added to the former circular forms.
The Harrison Estate, listed on the National Register of Historic Places, represents the leading edge of the International Style.
It has now undergone a complete restoration and expansion, designed by SchappacherWhite Ltd., that honors Harrison's original design intent while satisfying the needs of a 21st century family. The Harrison Estate was a laboratory for ideas Harrison expressed in his architecture.
The home's signature element, the circle, is found in the forms of the living room, small former dining room, pool, and even concrete pavers used for walkways, all of which have been restored by SchappacherWhite. Spaces were winterized and built to today's sustainable standards.
The Harrison house was not only a place for architectural exploration, but also a home for many artists and a canvas for site-specific works. In 1942, Fernand Leger, escaping the war in Europe, came to the house and painted a canvas for the large round living room and also painted figurative swimmers on the bottom of the circular swimming pool.
Existing and restored is the only remaining Leger artwork, a skylight located at the new dining room. Amongst the many artists and friends whom enjoyed the house were Alexander Calder, Marc Chagall, Mary Callery, Robert Moses, and Le Corbusier.
A Mary Callery sculpture is found on the Living room wall adjacent the restored steel windows. In order to update the use as a full time family home, an expansion doubling the size of the original structure was designed by SchappacherWhite Ltd.
The addition includes a two story steel framed glass wall that reflects the 16'-0" high existing steel framed facetted windows in the round living room. The former kitchen was expanded with a 14'-3" ceiling, a square in plan, and openings at two sides creating a fluid and open plan that matches the original architecture intentions.
Original details were retained in the Modern spirit for the addition, cabinetry, hardware, and finishes.
SchappacherWhite considered every detail so that the spirit of the house, even in areas that were completely redesigned, remains true to the original.
The Harrison Estate has an important place in our country's architectural history, providing a fascinating case study in how European Modernism came to the United States through Long Island as a gateway.
The restoration and addition shows how contemporary residents are preserving a piece of history while living very much in the present.























