House at Goleen
ARCHITECTS
Niall McLaughlin Architects
TIMBER CONSULTANTS
TRADA
MAIN CONTRACTOR
C.H.O.M Construction Ltd
PHOTOGRAPHS
Nick Guttridge, Nick Kane, Niall McLaughlin
M&E ENGINEER
EDC Engineering Design Consultants
QUANTITY SERVEYOR
AKC Chartered Surveyors
STONE CONSULTANTS
Harrison Goldman
MANUFACTURERS
PBA
STRUCTURAL ENGINEER
Price and Myers
LANDSCAPE ARCHITECT
Desmond FitzGerald Architects
AREA
300.0 m2
PROJECT YEAR
2009
LOCATION
Cork, Ireland
CATEGORY
Houses
Text description provided by the architects.
CLIENT BRIEF
The existing house had suffered the abuse of the local climate and haphazard development over a period of years resulting in a fragmented plan and disjointed appearance.
The clients brief was straightforward; to retain part of the original structure and to provide additional accommodation and landscaping fit for the quality of the site.
EXISTING SITE
The site is located in an area of exceptional natural beauty. Sea views and rugged yet lush landscapes combine with fast changing skies and wild deep blue seas.
The site faces the sea to the east. The existing house was set between a steep rock face to the north and a small stream to the South. The access road winds down the cliff from the west to the house. To the east a long gently sloping lawn stretches seaward towards the rocky coastline.
PLANNING CONSTRAINTS
Outside of the local development boundary and set just below one of Europe’s most scenic roads, the character of the views and the landscape seen from the land around the house and the sea had to be maintained.
The local design guide proposed traditional or vernacular forms as acceptable but was clear that designs of exceptional quality with an emphasis on energy efficiency offering diversity in design would be acknowledged.
DESIGN
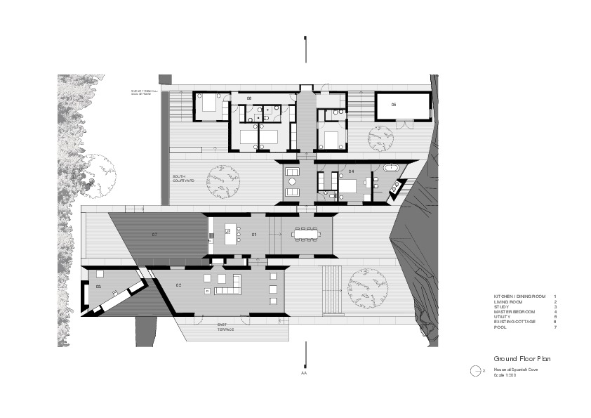
The house is formed of a series of linear pavilions set parallel to the original house. The pavilions step down the 1.6m fall of the site creating a meandering path through the house from the entrance on the west to the living space and sea views to the east. The form of the existing cottage influenced the design of the new structures and its ridge was used as a datum that defines the heights of the new buildings.
A series of pitched roofs are staggered across the site creat- ing pockets of space forming semi-enclosed courtyards. At the end of the journey a large terrace reveals spectacular views of the cliffs, the sea and the islands of West Cork. Guest bedrooms are located in the refurbished cottage. Visitors pass through a glass link into the first of the limestone buildings, the first of which accommodates the master bedroom and bathroom.
The second limestone pavilion con- tains the dining room and kitchen. The final pavilion is broken into two parts, one for the living room and the other a freestanding study, accessed via stone doors and a small bridge over the cascading pools.
Materials Method of Construction The existing house is roofed in natural slate with rendered white walls. New structures are clad in Irish blue limestone. This natural material weathers over time to match the geology of the surrounding cliffs.
The stone becomes highly reflective when wet. The loads of the stone to the roof and the walls are supported by a reinforced concrete structure providing thermal mass that regulates temperatures and stores heat.




















