Co Op Bank In Kiti
ARCHITECTS
Amsa: amsa / Nektarios Afxentiou, Anargyros Mougiakos, Zoi Stasinopoulou
PHOTOGRAPHS
Anargyros Mougiakos
AREA
1000.0 m2
YEAR
2009
LOCATION
Kiti, Cyprus
CATEGORY
Services
Text description provided by architect.
The new office building of the Synergasias Co-op bank of the villages Kiti, Pervolia, Tersefanou and Meneou is located in Kiti, Larnaca district, in a plot at the north end of the village, next to the commercial facilities of the company and close to the local high school.
The building lies along the central street, opposite the high school, reinforcing the public character of the street but also creating a continuous linear barrier from the heavy traffic.
The access to the building is through the internal pedestrian pathway which connects the building with the existing facilities of the commercial department, the parking area and the small public park that is created.
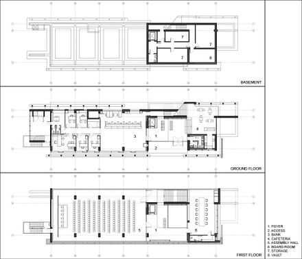
The different functions of the building are arranged in distinguishable groups around the central atrium in order to ensure the safe function of the banking area in relation with the activities that take place in the other areas.
Banking area and the café are placed in the ground floor and lecture hall and meeting room for the board on the first floor. Storing, archive and server room are placed in the basement.
The internal layout of the building and the horizontal and vertical circulation are projected on the elevations which are built of fare faced concrete surfaces, curtain walls and u-profiled glass in double glazing arrangement.
Emphasis was given in the quality of natural and artificial light, depending on the internal space function. In the ground floor the large glass openings are shaded by concrete and wooden shades which allow the natural light to enter the interior spaces without preventing the optical contact between inside and outside.
The total transparency of the ground level comes in contrast with the focused perspectives of the first level windows, penetrating the opaque concrete walls and the translucent surfaces of the u-glass facades.






















