
Wards Cove Marina Warehouse
ARCHITECTS
Atelierjones
PHOTOGRAPHS
Lara Swimmer Photography, Lisa Picard
AREA
19850 ft²
YEAR
2009
LOCATION
Seattle, Washington, USA
CATEGORY
Warehouse, Renovation
Text description provided by architect.
Wards Cove is located in the urban residential Eastlake neighborhood along the eastern shore of Lake Union in Seattle.
For 100 years, the waterfront property was the Seattle base of the salmon packing operation of Wards Cove Packing Company. In 2002, the company decided to develop its waterfront and adaptively reuse the marine industrial warehouse.
Site and marina building renovations were completed in January 2009. atelierjones preserved the property’s rich history, incorporating form and material from preexisting structures into the overall site and warehouse.
Follow the break for drawings and photographs of Wards Cove Marina Warehouse.
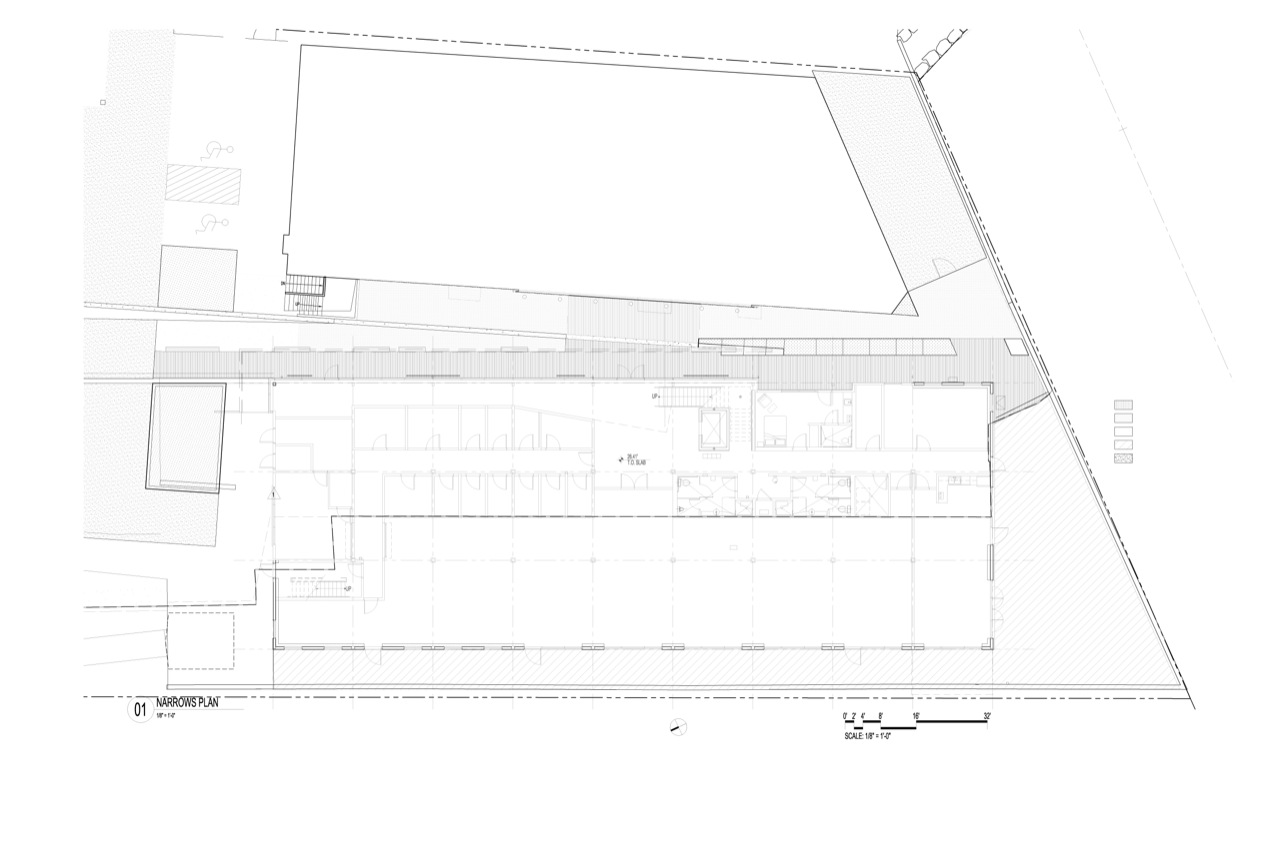
The full renovation of the marine industrial warehouse included creating a narrow mews located between the two older buildings opening up a dramatic, light filled entry sequence into the renovated warehouse for creative office tenants.
Themes of reuse and memory were invoked throughout the building.
Tall timbers from an existing warehouse structure that stood on the site evoked the presence of the former building, framing waterfront views beyond.
Existing timbers were also used as site details throughout the site, as framing for gatehouses, benches, and wheel stops.
Doors were reused as mnemonic screening devices within the narrows, and the existing wood and steel structural details of the industrial warehouse were celebrated throughout.
Through collaboration with artist Buster Simpson a site wall was created from galvanized steel/concrete wall, lines of which were taken from a loft lines drawing of one of the family’s most beloved fishing vessels, the Renown.















