
The Hodoš Centre for the Elderly
ARCHITECTS
Ravnikar Potokar
PHOTOGRAPHS
Miran Kambič
AREA
2473.0 m2
YEAR
2010
LOCATION
Hodoš, Slovenia
CATEGORY
Senior Center
Text description provided by architect.
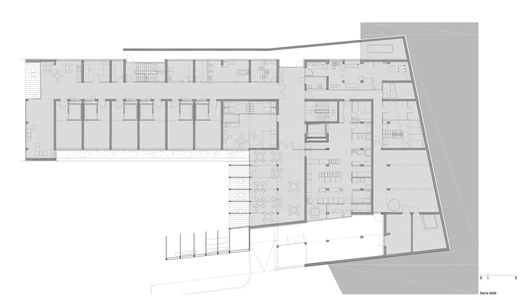
The Hodoš Centre for the Elderly is located in the heart of the village of Hodoš. Together with the school and the municipal buildings it is also becoming a generator of local events for, apart from the residential rooms, it houses common areas that are intended for external users.
The clear volume of the L-shaped first floor part is painted in brick-red colour, providing a modern reference to the surrounding red-brick roofs.
The building seeks a connection with the local context where commercial premises are located on a long allotment with a longitudinal side, while residential premises are parallel to the street.
Together, the volumes create an inner atrium or courtyard that is repeated in the new construction: due to the L-shape an inner courtyard is being formed on the lower level, linked through the existing terrain and a cultivated meadow with the surrounding landscape.
The flat roof becomes a rising shed-roof when it reaches the rooms. The rooms thus receive additional sun light and the roof is no longer a monotonous horizontal but a dynamic surface resembling the undulated landscape of Prekmurje.
The building’s openness is further emphasised with views of the church tower above the road and of the landscape, as the corridor on the western and eastern façades has an opening in the form of frames to guide the views. The corridor is thus no longer just a communication line but becomes a common socialising area that is connected with nature.










