
Student Housing
ARCHITECTS
Pierre Marsan
PHOTOGRAPHS
Anne Leroy
YEAR
2010
CATEGORY
Dorms
LOCATION
Castetbon, France
Text description provided by architect.
The students house project interprets some elements of the heritage of the Soule country, by forming its volumes inspired by the organization of the pastoral stage, and also by the particular geometry of the dome of the church of St Blaise Hospital nearby.
From a pastoral scene, we wanted to keep the organization in two planes, one vertical forming the backdrop, and another horizontally, like a square. The result is a space-oriented in a direction that will define a volume which have to be developed. We took the rotation of the elements from the dome, which applied to the initial volume: the pastoral scene, produce, by a composition of successive rotations, a new volume: the students house.
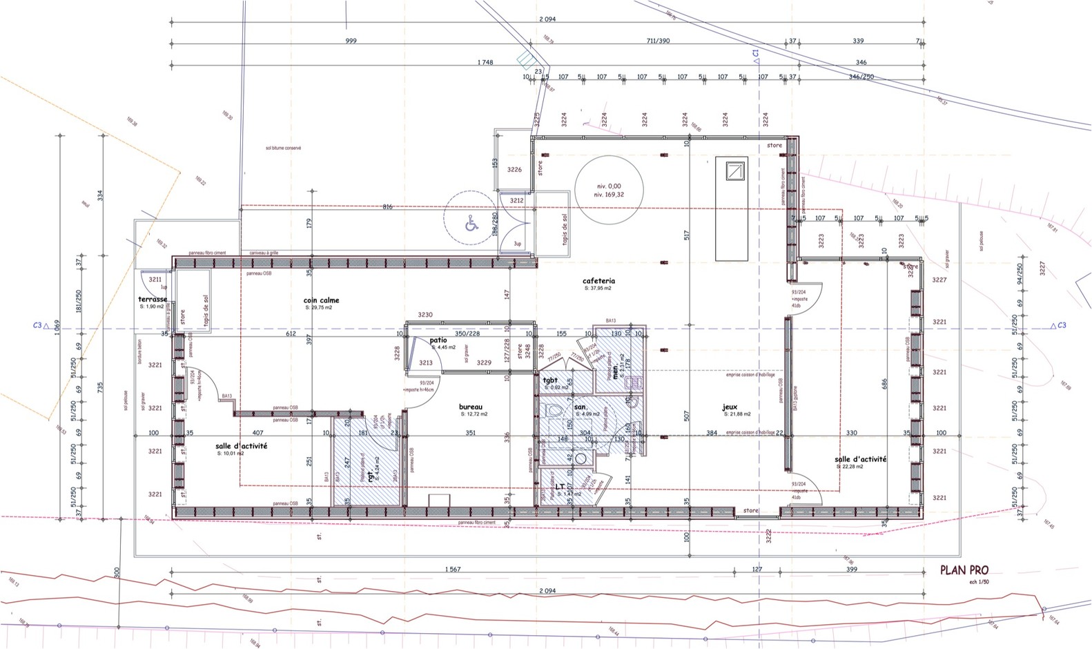
The students house program is quite simple: a large multi-activity room, two activity rooms, and additional rooms. We could implanted everything in a square, by distributing the pieces around the main room. It is also possible to describe the rooms, to break space multi-activity and modulate the distribution of parts annex in the image of the composition of the Chilida's sculptures. Finally, we can contextualize the project, using the past geometric matrix to define the rooms.
The site of the School is structured by three major buildings : -The boarding, linear building constructed longitudinally to the slope of the land. -The workshop MA/TP building constructed perpendicular to the slope of the land and built into the ground.
-The bicycles and motorcycles workshop building posed as an isolated lodge in the upper part of the land. The space between the three buildings is shaped like a triangular garden organized in tiers vegetated. The space is open on the base of the triangle materialized by the green roof of the workshops MA/TP. The students house is currently installed in two prefabricated buildings, located on one branch of the triangle below the motorcycle workshops.
The frank joint formed by the recess in the floor of the building of the workshops MA/TP liberates space in the hollow. This sheds light on the back of the building, on a day well, crossed by bridges.
This organization at right angles, formed of a prominent building and a court hollow, evokes some morphologies of contemporary architecture, where you can find generally close to the intersection of two similar volumes the emergence of a pavilion. It therefore seems typologically natural to propose to establish the students house in the immediate vicinity of the premises of school life.



















