Carnegie Library of Pittsburgh – East Liberty Branch Addition and Renovation
ARCHITECTS
Edge Studio
PHOTOGRAPHS
Ed Massery
YEAR
2010
LOCATION
United States
CATEGORY
Library
Text description provided by architect.
Located on an urban block in Pittsburgh, the Carnegie Library of Pittsburgh, East Liberty neighborhood library serves one of the most economically and racially diverse populations in Pittsburgh.
EDGE studio worked with the Carnegie Library of Pittsburgh (CLP) to fully renovate the existing 33,000 sf, 1967 facility and provide a 9,000 sf addition which facilitates a complete reorganization of library services.
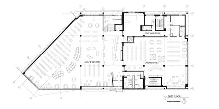
With adult, teen and children’s department collections and services, 4 meeting rooms, back of house offices and workrooms, and a high density storage space for 150,000 historic volumes known as the ‘Heritage Collection,’ along with growth space for central library operations, the facility was dramatically reshaped to improve the library’s ability to provide services.
The existing building was completely transformed by removing its un-insulated, single glazed envelope and expanding the structure to enlarge the facility and to give shape to a building which would have a greater visual presence when approached from all nearby streets.
Taking formal cues from the adjacent, grandly scaled neo-gothic church, the new library building is wrapped in a folded rain screen skin articulated to reveal depth in shadow and light. At the upper floors, the building extends beyond the property lines to stretch into the view corridors of major streets, making it more visible to first time visitors and screening.
Two main entrances, located opposite each other with the Customer Service (circulation) desk located between them welcome visitors who arrive by bus on one side, and those who park their car in the public lot, at the other side.
The new exterior wall assembly helps to provide for a highly sustainable building with a thermally superior envelope. Efficient mechanical systems, along with low energy use lighting fixtures and lamps, and low water use plumbing systems help keep operating costs low.
At the interior, the space was reorganized to locate all of the main library services, including adult, teen and children’s department services on a single floor with maximum staff sight lines to minimize staffing requirements. Accessibility, both physical and visual, is important to the visitor experience.
That the library is welcoming to its diverse customer base, and that all visitors can orient themselves to the space immediately upon entry ensures that services are readily perceived.
Expansive windows which let natural light in and views out, with glare controlled by second floor overhangs determined by applying solar modeling to the building, provide the public spaces with comfortable, light infused spaces ideal for reading and computer use.
An atrium connects the first floor to the second floor. At the second floor, four meeting rooms, two which can be combined by way of a folding acoustic partition into one large room, were provided along with open office space for central library operations.
The lower level, which had been utilized for miscellaneous storage, was renovated and mechanical systems provided to accommodate high density storage of historic material.













