
Y House In China
ARCHITECTS
Beijing Matsubara and Architects
PHOTOGRAPHS
Misae HIROMATSU
AREA
YEAR
LOCATION
Beijing, China
CATEGORY
House
Text description provided by architect.
This is a detached house project locating at Changping ward, the suburb of Beijing City.
The site is on the slope facing to the south, surrounded by the mountain in the north side, and has the good natural environment.
This is not a new construction but the renovation project of the old concrete structure house that was built 5 years ago.
Originally the house was 2 stories (250 sq. m.) with angled roof, and the exterior wall was covered by white tiles.
Our new design changes it as the house of 3 stories (770 sq. m.) with flat roof, and the exterior wall is covered by gray blocks with outer insulation.
Actually the exterior walls consist of 3 layers like the layer of windows-doors, the layer of insulation and the layer of concrete blocks.
Since the original position of openings is rather random, when we make the new façade of the house, we make the new face natural as much as possible using these 3 layers.
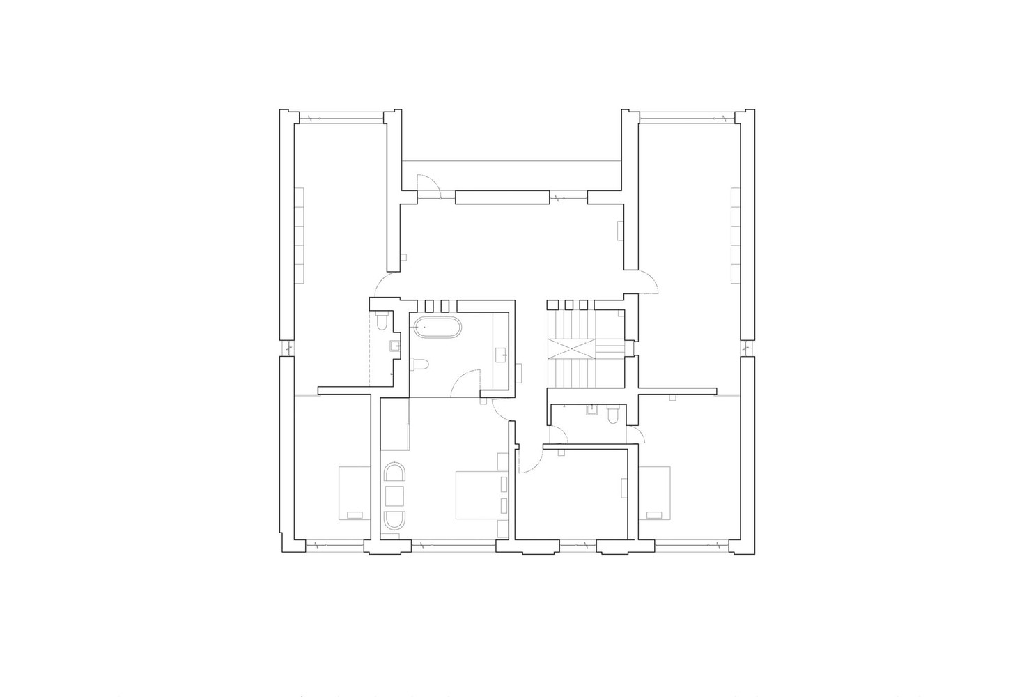
On Interior design, we put the living as the public space on the first floor, the bedrooms as the private space on the second floor, and the reading room-gallery as the relaxing space on the third floor.
The vertical traffic core is located in the center of the plan.
There is a step floor space on the third floor that is made from the original rooftop space. This is made as an interior space by our renovation.

The part of the wall is not painted and is revealed of the original old brick walls. Lower side of the floor is not covered by the ceiling and kept the original rough concrete texture.
17 meters width and 16 meters depth of the plan is rather large for one family (4 persons). We proposed the sustainable lifestyle using this largeness. In the summertime, habitants live at the north part of the house with natural ventilation.
In the wintertime, they live at south part of the house equipped with the basic heating system.

For keeping the comfortable inner circumstance, we do not provide the high-spec air conditioning for all interior space, but provide the minimum equipment for adequate place.
Habitants can find the comfortable space and choose the living place according to the season.
This is a sustainable architecture especially for the place that has plenty of land such as China.









































