
Water-Cooled House
ARCHITECTS
Wallflower Architecture + Design
PHOTOGRAPHS
Albert Lim
YEAR
2009
LOCATION
Bukit Timah, Singapore
CATEGORY
Houses
Text description provided by architect.
Hidden away from the road, the site is surrounded by a verdant screen of mature trees from adjacent properties. Breezes blowing transversely across the site being another notable aspect of the location.
The owner had wanted a contemporary home that prioritized environmental coolness as a consistent attribute and to be able to enjoy the luscious tropical surroundings.
The concept developed for the home inverted planning and hierarchical norms common in local residential planning.
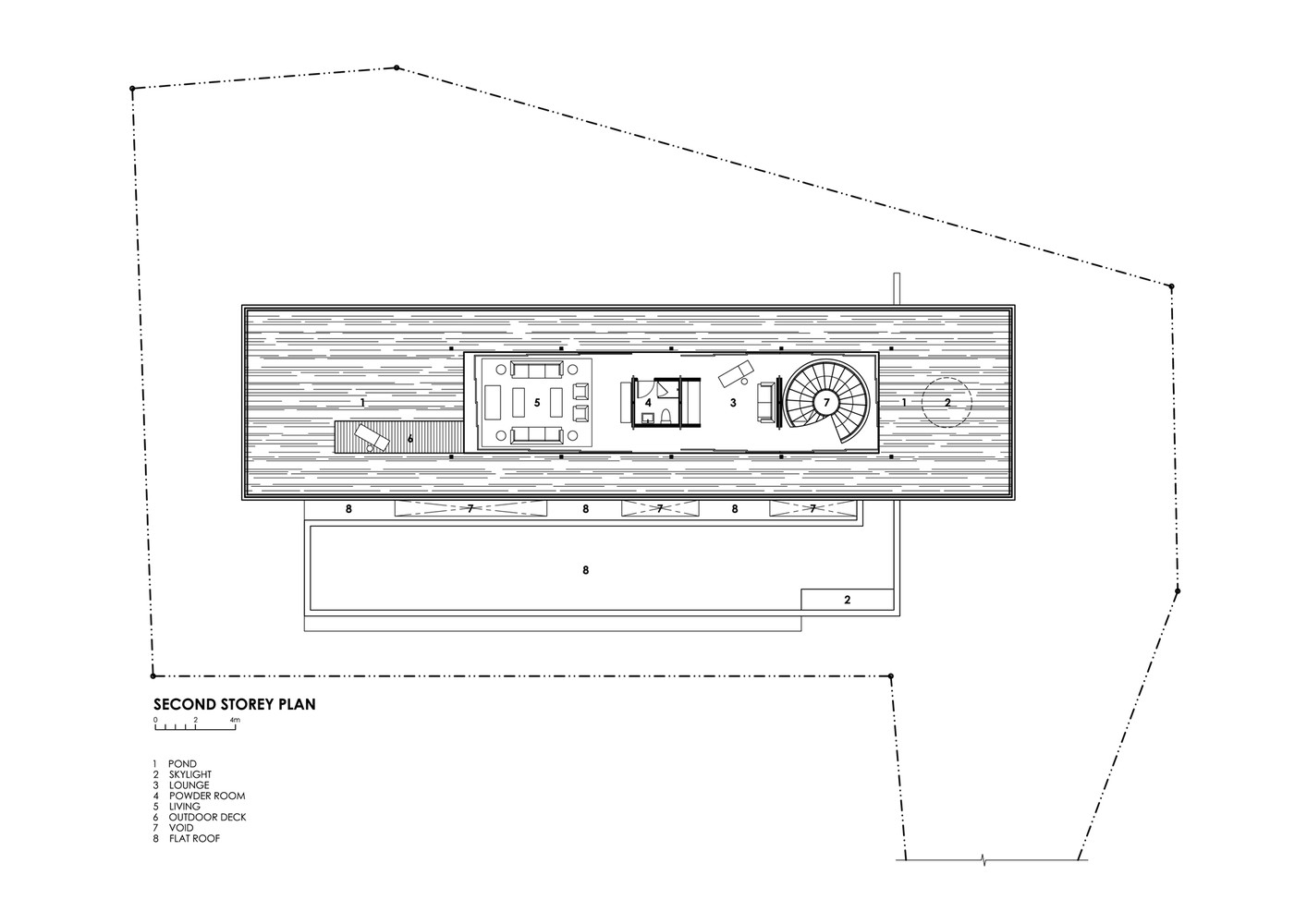
To fully appreciate the mature and variegated natural environment and stretch the potential for visual depth and distance, the main living room and study were located in a pavilion on the second storey.
It was designed with minimal enclosing and supporting structure so as to maximize the elevated vistas.
To unconsciously guide visitors to the living pavilion above, a minimal spiral staircase touches down within the entrance foyer.
Hints of the tree-lined views are seen through the large circular void connecting the entrance foyer to the pavilion above.
A dark reflecting pond surrounds the pavilion which assists in refining the experience of serene isolation and privacy and frames.
The occasional bird dipping into the pond, rippling the surface further ties the house to the natural surroundings.
The purpose of the second storey pond is also designed to thermally insulate the dining, bedrooms and family spaces underneath from solar heat gain.
In the same way, the water body above also helps to regulate temperature swings within the house.
On the first storey, the residential and service functions of the house are delineated by a long continuous light and air well that is paralleled below by a similarly long and continuous koi pond.
The pathway running along-side the pond that leads to the bedrooms hides the substantial service areas which are beyond the pathway wall.
As with the second storey pond, the air well and first storey koi pond is also designed to facilitate in micro-cooling the first storey rooms and spaces.
The pathway is a conduit for prevailing breezes; the koi pond’s thirty metre length and two metre width exposes a sixty square metre surface area within the house to those breezes for evaporative cooling.
As a gesture to the prominent role that water plays within the residence, an oculus within the pond highlights the main entrance, the circle of sunlight cooled and animated by the constantly changing sinusoidal patterns of refracted rays through the water above.























