Topoi Engelsbrand
ARCHITECTS
Office for Architecture Stocker
PHOTOGRAPHS
Brigida González
CONTRACTOR
Karl Köhler GmbH
AREA
9800.0 m2
YEAR
2009
CATEGORY
Houses
LOCATION
Germany
Text description provided by the architects.
On a 92 are big estate on the northern rim of the Black Forest two residential houses and a pool came into being within a landscape garden. On the exposed topography located on a slight slope, different topologies are explored.
The inhabited and uninhabited buildings, gardens of different sizes provide the ground for the quest of classical and unknown geometric topologies.
The calm search for the „quinta essentia“ of an elegant classical form leads from the tetrahedron to the artificial landscape. A classical form which does not deny its revolutionary roots and formulates a poetic science.
Phase One > Existing House ‘Phanta Rhei’
Swiftly and with every shower
There’s change along the valley’s rim, Alas, in the selfsame river
A second time you cannot swim.
Permanence in Change, by Johann Wolfgang Goethe (To Heraklit)
The existing house was reconstructed, extended and cut in two. By leading a run through its middle, the house was opened to the landscape.
Phase Two >> New Construction ‘Hexahedron’
„Matter desires form“
after Aristotle
The new construction is an exact and slightly raised hexahedron. The external leafs, made of exposed concrete, shape with regular form ties the raised cube.
The rigorous structure on the outside with radical ramps, batters and graded terraces forms the starting point of the estate.
The wild landscape of the Black Forest is artificially enclosed. Along the 250 m long axis of summer solstice the artificial landscape frees itself to a natural and wild habitat.
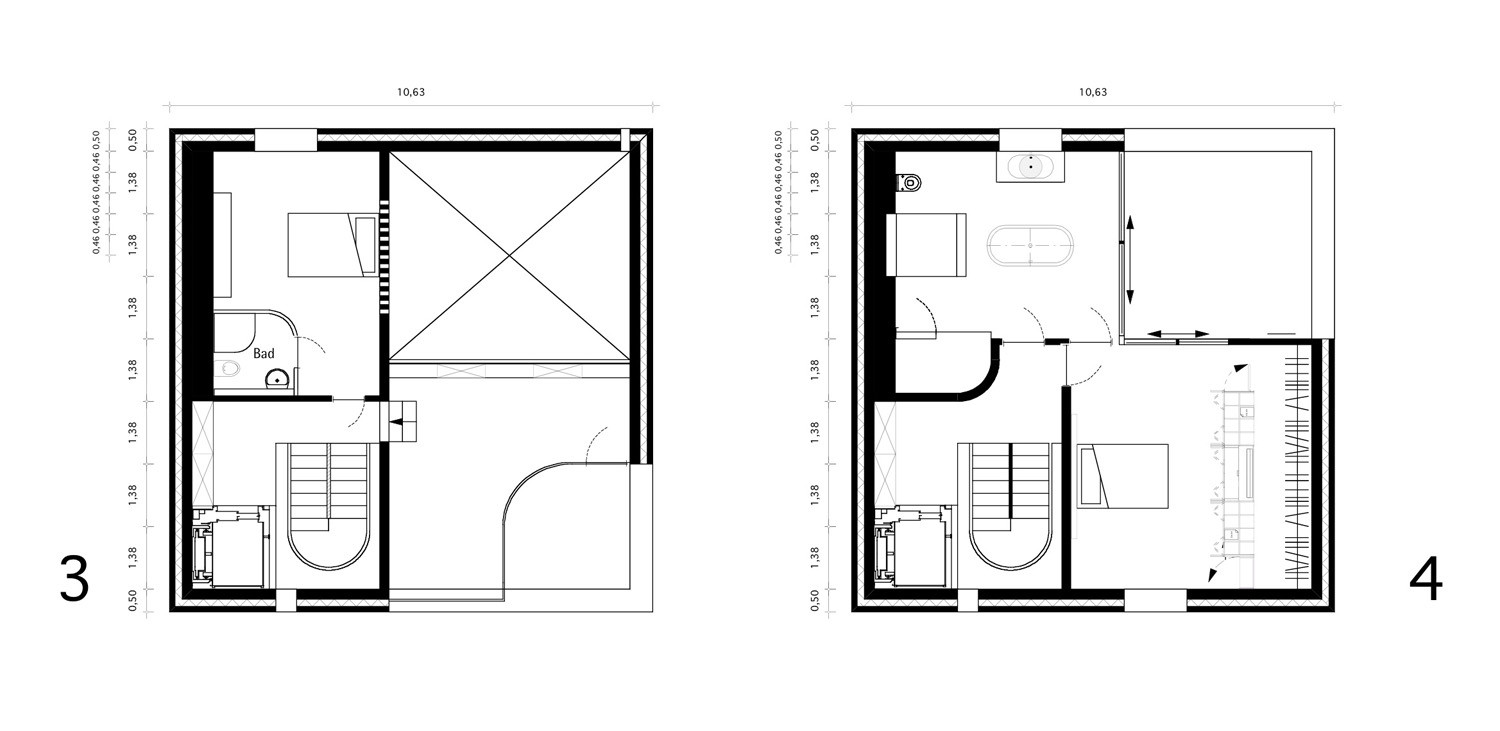
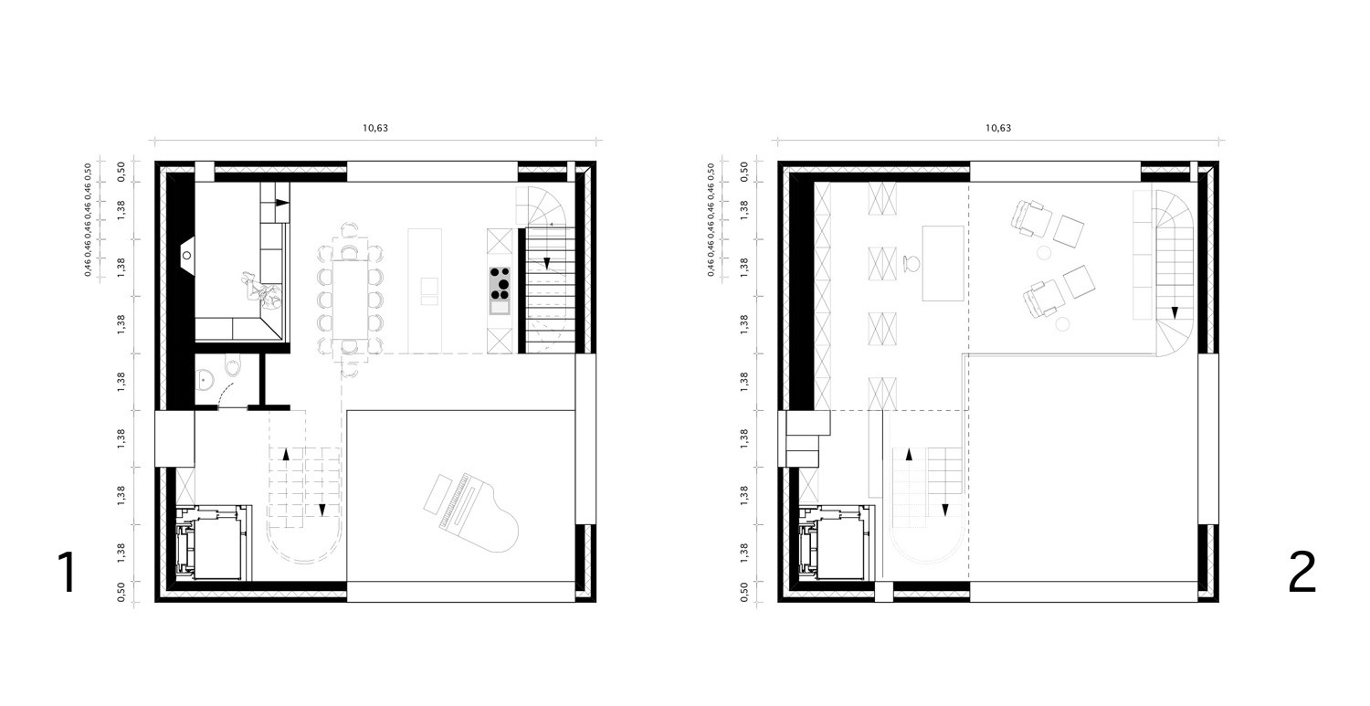
In the playful interior of the hexahedron low ceilings alternate with two-story high ceilings. Joiner’s work on a small personal scale creates retreats and dens in the continuous space which spans over five stories.
For example, a reading desk within the library stacks, an integrated fireside bench, a recessed seating within the shower up to a meditative dark 8 Tatami mats room. Extensive joiner’s works were realized as an integral part throughout the building. Straight and coiled stairways lead from the basement to the upper observatory terrace in a smooth round choreography.
On his path the visitor takes the passage along two-story high minimal windows and apertures as high as the building. Through these openings the spaces are exposed to bright daylight. Wood from a 200 years old oak cut down by a stroke of lightning, local sandstone from Maulbronn and other locally won materials were used for the interior works. Artificial and natural lightings stage interior and exterior spaces.
Energy concept: The high energy efficiency is accomplished by an impermeability concept, highly effective thermal insulation, and a geothermal energy source with a recuperator combined with a floor heating system. The windows have highly insulated double panes with warm edge, fiberglass frames and minimal aluminium frames. Passive solar energy is a part of the energy concept.
Phase Three >>> Philosophical Landscape Garden
"You seek life, and a godly fire
Gushes and gleams for you out of the earth,
As, with shuddering long, you
Hurl yourself down to the flames of the Etna.
Empedokles by Friedrich Hölderlin
The protected local flora develops from the wild habitat (bosco) to an artificial landscape (bosco). Water runs through the topography and maintains ponds and basins. The rising sun shines along the 250 m axis through the whole estate on the date of summer solstice. A variety of follies define places in the philosophical landscape:
A falsification swing, a romantic relict as a goose shed, a Tetrahedron fireplace, the Octrahedron, a teahouse made from Corten Steel, which defines a numerical microcosm in the wilderness.
























