
House in Sonvico
ARCHITECTS
Martino Pedrozzi
CATEGORY
Houses
CLIENT
Reto and Flavia Petrimpol
YEAR
2010
PHOTOGRAPHS
Pino Brioschi
COUNTRY
Switzerland
SITE AREA
1000 m2
AREA
250 m²
CITY
Sonvico
A one storey house on a quite steep slope. That was the challenge imposed by topography and client. A most welcome challenge of course: to us one storey architecture is the best condition for good architecture.
Its solution stays in the section of the project: a big horizontal prestressed slab of fifteen by twenty meters sitting on the natural land on one hand and laying on two gigantic round pillars on the opposite site. Above twenty pillars sustain the roof. Under a main space is created for outdoor living.
The house structure is external and integrally made in concrete. None of its parts penetrate the internal insulated spaces that are organized around a central void, between slab and roof.
Ceramic white tiles, shiny and opaque defining a graphic pattern, contrast with concrete and enclose the indoor living spaces.
Where the house lays on the ground, there is the access. Descending upstream the slope a big porch introduces the house main door.
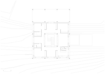
Inside, the square-shaped ground floor is divided between public and private spaces. Public spaces like entrance hall, living room, dining room and studio are placed in the middle of the sides. Private spaces like bedrooms and kitchen find their place in the corners and when it is necessary can be isolated from the rest.
The central void makes the connection between indoor and outdoor living spaces. A staircase leads down to a paved and partially covered surface integrating a swimming pool, a laying and a dining area, surrounded by an impressive natural environment.











