Legal Medical Institute of Granada
ARCHITECTURE
Andrés López + Jesús Bozzo + Rosa Palacios
STRUCTUR
Francisco Duarte Jiménez
PROJECT DIRECTOR
Rufino Manuel Quesada Molina
CONSTRUCTION
Constructora Hispánica S.A.
COLLABORATORS
Marcos Plazuelo López
PROMOTOR
Junta de Andalucía, Consejería de Justicia y Administración Pública
BUDGET
2,488,176 Euros
PROJECT MANAGERS
Andrés López Fernández, Jesús Bozzo Fernández de Tirso, Rosa Palacios Garrido
YEAR
2010
LOCATION
Granada, Spain
CATEGORY
Institutional Buildings
Text description provided by architect.
The relationship between legal medicine and architecture hasn't been, in general, very natural, as a consequence of the western culture avoiding matters that involve suffering.
Architecture, sadly, doesn't have magical formulas to avoid this, and our challenge is to contribute, at least, to relieve it.
Bright, kind and dialoguing architecture, closer to the citizens, help the staff in performing their essential work, at the same time giving the users the technical support they need so their stay in these kind of centers are more bearable.
Before we started this project, in our minds we had images of nordic forests, associated to projects from Aalto, Lewerentz and Asplund.
Places to let the view fly, for reflection and hope. The first sketches of the project tried to find some of this, towards the remoteness of the Alhambra or the bright sunsets over Sierra Nevada.
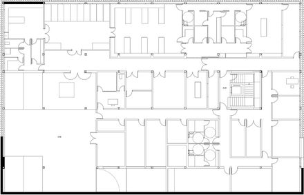
When facing a plot of reduced dimensions in which we needed to accomodate an extensive program, we decided on a compact building, light and transparent, that evoked the snuff dryers of Granada's Vega.
Through a network of concrete, part of this legendary Granada atmosphere will leak into the building, and it's interior brightness will rescue the cryptic image associated to the character of these programs.
The proposed solar for the new Legal Medicine Institute is situated in an area in process of transformation, visible from the bypass and connections to the coast.
The absence of urban references and destiny of the building, of complex and introverted program, justify the proposal of a clear block, apparently opaque to the exterior, with the facade's only opening through a great porch that focuses every entrance to the building.
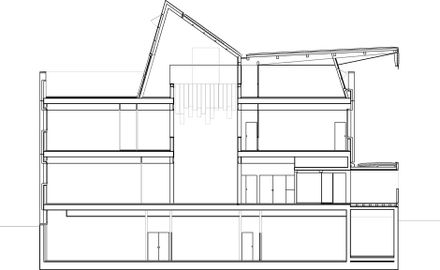
The building is set as a great arch protected to the exterior through vertical concrete ribs that gives the building its blind and hermetic aspect, from the exterior, at the same time bright and transparent from the interior.
The closed and massive character the building will offer to the passer during the day will become open and bright like a torch, during the night.
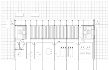
The building is located 1,30 m over the outer slope, to allow the dependencies located in the basement to have natural light and ventilation.
The interior natural brightness is even bigger in the heart of the building thanks to the interior emptiness that opens to the sky through a transparent cover.
Light filters through an overhead structure that reconstructs a fictional city, a perfect downtown, recovered from the noise diagram from the bottom of the universe commissioned by the SETI, whose mission evokes the origin, nature and existence of life in the universe.






















