
Tbwa Office Building
ARCHITECTS
ZZDP Architecten
AREA
8000.0 m²
LOCATION
Amsterdam, The Netherlands
CATEGORY
Offices
YEAR
2010
PHOTOGRAPHS
Michel Kievits
Text description provided by architect.
The offices of TBWA are situated at the edge of the Schinkel area of Amsterdam. This former industrial estate has in a charming way retained its rough character.
Well known Dutch architects like Hugh Maaskant, Mart Stam and Frank van Klingeren left their traces here. The design of TBWA refers to both their architectural language and the industrial genus loci.
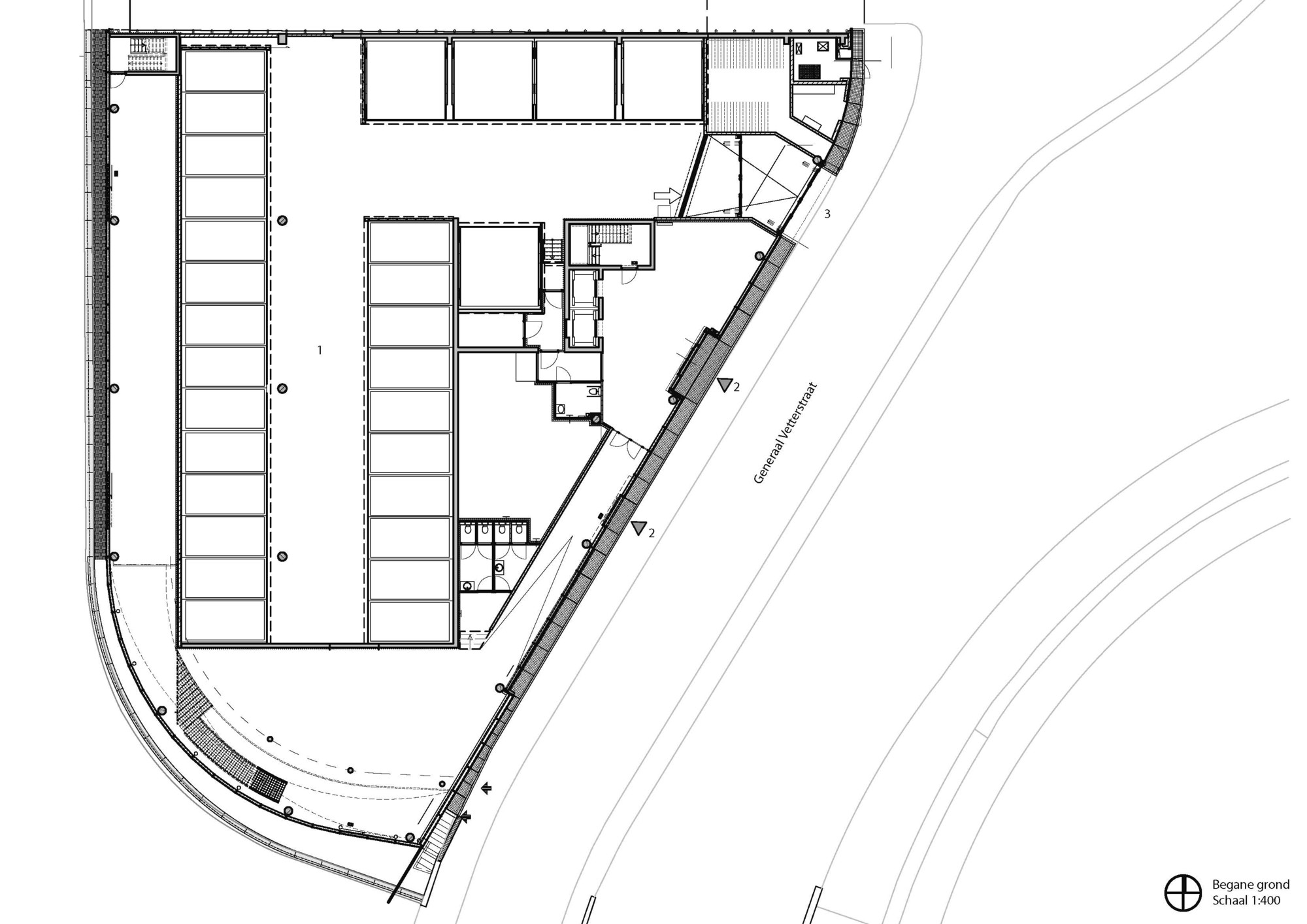
The triangular site is wedged between the access road of the estate and the water of the Westlandse gracht. The site has been fully built upon with a distinct volume.
The façade is dominated by continuous horizontal lines made up of Corten steel cassettes alternated with strip windows.
The Corten steel has an edge quality to it that seems to echo the industrial history of the site. The horizontal façade structure refers to the masonry spandrels of its neighbors. At the street side the steel cassettes form spandrels.
The windows have been detailed jointless and flush to optimize the contrast with the rough Corten steel cassettes as you approach the building under an oblique angle.
The lowest spandrel – part of a base that will include Phase 2 – has been executed in Pillarguri, a iron-rich Norwegian slate that shows some oxidation.
At the water side the Corten cassettes form the balustrade of a balcony that fans out, creating a generous outdoor space at the building’s southern tip. While providing ample outdoor space for the office users, the balconies provide natural solar shading.
The distinct shape of the Corten steel cassettes is the result of an engineering exercise to minimize the soiling of the glass by rust particles.
Through the use of a sprinkler installation the building floor plates of approximately 1800m2 can be completely open plan. The floor to floor height of 4 meters suits the aspirations of the current tenant in the creative industry.
The generous height also offers all possibilities for changes of use in the future. In the heart of the building is formed by an atrium with wooden stairs. This offers attractive cross views and enhances the interaction of the users of the different floors.
Daylight from the shed roof reaches down as far as the ground floor. Sunken somewhat into the ground the parking provision is positioned central within the building.
Through the use of automated parking the space within the building is optimally used and the construction of a costly underground parking garage could be avoided. Through a window in the canteen one can follow the three level parking process in progress.
The landmark quality of the TBWA building increases the attractiveness of the Schinkel area. This modern office refers with the subdivision, rhythm and materialization of its façade to the industrial characteristics of the environment in which it stands.
Full height glazed screens, open plan floor plans and generous floor heights make that the building is currently attractive to the creative industry. At the same time these built in qualities are a guarantee that the building will be fit for use in the future.





















