Ahn Jung-geun Memorial Hall
ARCHITECTS
D.LIM architects
ELECTRICAL ENGINEERING
Hitec Engineering Co.Ltd
MANUFACTURERS
Bendheim, Danpal, DVP
CIVIL ENGINEERING
Saegil Engineering & Consulting
MECHANICAL ENGINEERING
ENG Energy Design Lab
STRUCTURAL ENGINEER
Kyungjai Structural Engineers
PHOTOGRAPHS
Youngchae Park
AREA
1185.02 m²
YEAR
2010
LOCATION
Yongsan-dong 2-ga, South Korea
CATEGORY
Memorial Center
Text description provided by architect.
The Ahn Jung-geun Memorial Hall is nestled around forest in the Mountain Nam(Namsan) where is located in the center of Seoul, Korea. Ahn Jung-geun is one of famous patriots in Korea, who was also a Korean independence activist, nationalist,and pan-Asianist.
SYMBOLISM
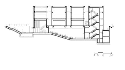
The memorial hall is configured as a cluster of 12 columns that shoot up from the sunken base.
The number 12 symbolizes the unsung heroes of Dongeui Danjihoe ― a secret society whose name roughly translates into the Society of Patriots ― that was originally organized by Ahn. The members severed their little fingers in 1909 in a demonstration of their loyalty and determination to the underground liberation movement.
Next to the site are the remnants of an old war shrine where Japanese people worshipped their warlords and spirits during the colonial era.
Having dug up the age-old reminder of disgrace and humiliation, the new building for Ahn Jung-geun (1879-1910), a patriot and martyr, stands triumphantly over the site.
The small square site where the new memorial hall stands was emptied of its earth, the amount of which equals the volume of the new building. Divided into 12 equal masses, this symbolic soil was reposited into the dig.
The columns represent the soil, a symbol for the alliance, from which Ahn emerged. This historic location and soil help to re-define Ahn’s purpose.
During the day, the 12 massive columns stand tall, like spirit tablets, towering over the old site of the war shrine. At night, they become 12 brightly-burning lights that symbolize their teaching, as hundreds of thousands of people visit the hall on Namsan.
COMMEMORATION
Behind the hall, beautiful Namsan can be seen. Once inside, the entrance leads visitors to the ramps situated one level below the surroundings.
As the visitors walk onto the ramps, they will see Ahn’s legacy of handwriting works imprinted on the black wall on the right.
The path stretches all the way to the back, where the main entrance is located. The walk is a long, serene journey connecting the present with the past. It serves as the conduit between times, as well as a link to the hall’s outdoor exhibition space.
The attention of the visitors naturally moves from the real world to the memorial space and from the surrounding calligraphy through adjustment in level variation.
Dedicated to Ahn Jung-geun, the exterior of this new facility is wrapped around in a consistently-textured, semi-opaque layer. Inside, there is an intriguing diversity of openings and closings, featuring various functions.
Instead of favoring dark, dramatic spaces, the building creates bright, diverse spaces inside the 12 luminous “boxes.” The translucent outer layer enables the scenery lighting to come from the building itself and helps maintain the symbolic significance of the commemorative hall.
After viewing the final exhibition room, visitors are led to the exterior of the building through the southern staircase, which provides a fine view of the Han River.
TRANSLUCENCY
The main reason for selecting U-shaped dual glass was the environment of Namsan and the shape of building. If stone or metal cladding had covered to the extremely simplified shape of the building, it would feel cold and coercive.
Transparent curtain walls are improper to function of building, and it would be isolated from the symbolical exterior. The translucent texture of U-shaped glass accentuates the greenery of surrounding trees, and it expresses a smooth charisma.
Transparent anterior windows were installed between the boxes to emphasize the 12-column structure, and it was designed for visitors to enjoy the magnificent view of Namsan from a small resting space.
The translucent outer layer enables the scenery lighting to come from the building itself and helps maintain the symbolic significance of the commemorative hall.
Reflection of the light was doubled after adding the film paper in between the U-glass double wall, allowing the lighting through entire building to be even.
The geographical conditions of Namsan Park brought additional requirements to the project. The height of building was limited to 12m, and more rules were dictated by the plans of Namsan Renaissance. In order to meet such client demands, the exhibition facilities had to be placed vertically over three floors.
Instead, flexible circulation was planned from the basement to the 2nd floor by installing an escalator. And the south staircase was designed to go outside with a view of the Han River after the tour of last gallery on the 2nd floor.
The only overlapping route in the circulation of the entire exhibition tour is the shrine hall, and placing the portrait of Ahn in the beginning and end of the exhibition was an architectural intention to guide the visitors.
ENVIRONMENT-FRIENDLY BUILDING
The Ahn Jung-geun Memorial Hall is surrounded by 40-foot tall trees in Mt. Nam. It is perfectly cube-shaped to be as compact as possible and half of its volume is below the ground level, which avoids being taller than trees around.
Even if the site is exposed in the hillside of the mountain, the building is energy-efficiently nestled in the ground. The skins of the building are double-layered. In the assembly hall, polycarbonate is installed with 600mm spacing from double U-shaped glass to keep inside temperature stable as well as to bring natural light in.
Water in the perimeter of the site is falling down to the sunken floor in summer, which cools down the building around.
A three-storied void space is placed in the center of the building with a retractable skylight, which allows day light in and the building to be naturally ventilated in and out.
The function of assembly for maintenance and management of the memorial is separated from the exhibition space and main entrance. The side of the building is designed to be accessible and the inner assembly hall through the sunken outdoor deck is connected from the 1st underground floor.
Polycarbonate was installed with 600mm spacing from double U-shaped glass to bring in natural light and to maintain an even exterior of the lobby in the memorial hall. Filtered soft natural light from outside always brightens the space in front of the assembly hall.
The auditorium can house more than 300 people when used in connection with the terraced deck area, enabling large-scale events to be held in the auditorium. Various events held in the auditorium can be maximized to their fullest from a financial perspective without harming the essence of the memorial.

























