ARCHITECTS
I.S.M.Architecten
AREA
310.0 m²
LOCATION
Heverlee, Belgium
CATEGORY
Houses
YEAR
2010
PHOTOGRAPHS
Frederik Vercruysse
Text description provided by architect.
In our opinion architecture is not neutral, it takes a clear position. She moves, surprises and is beautiful. In the creation of good architecture, the role of the client is not to be underestimated.
They have to choose the right architect for the realization of their dream. A client that has utter confidence in their architect, as was the case, allows us to push the project further than the direct materialization of the design brief.
A critical dialogue between client and architect is an ideal breeding ground for a beautiful project.
The volume of the house is partially pushed in the natural slope of the terrain resulting in a facade that is limited in height.
The addition of a long horizontal window (fenêtre en longeur) between ground and first floor gives the house a certain lightness as it seems to almost float above its base.
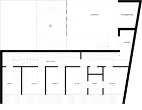
Thus half buried in the natural slope of the terrain, the day zone program is situated on the garden floor, the night zone program and entrance on the street side.
The resulting volume is a direct translation of the program. The closed nature of the exterior of the house is a nice contrast to the openness of the interior plan.
The patio on the street side and the fully glazed rear facade ensue a maximum of natural daylight and create a view on the outside space from every room in the house.
Charmed by its surroundings (Kesselse bergen), the house tries to merge itself in it. Since black in a natural setting seemed less intrusive, it was chosen as the main color for the exterior.
The location of the entrance is a result of all sorts of design and organizational decisions regarding the program and the site. Its position leads to a house that gradually reveals itself to the visitor. The further he descends, the more it unfolds.
The circulation was one of the starting points for the design of the house. As the house is very compact program wise, the circulation areas are designed to be more than merely functional. The stairs are positioned next to a glass wall that reflects the transparency of the outer shell.
The upstairs hallway contains all the bedroom cabinets, the skylights provide natural light. All circulation on the ground floor is situated adjacent to the patio and flow naturally in the surrounding spaces.




























