
Wrap House in United States
ARCHITECTS
Studio B Architects
AREA
3500.0 m2
LOCATION
Aspen, United States
CATEGORY
Houses
YEAR
2010
PHOTOGRAPHS
Raul Garcia, Derek Skalko
Text description provided by architect.
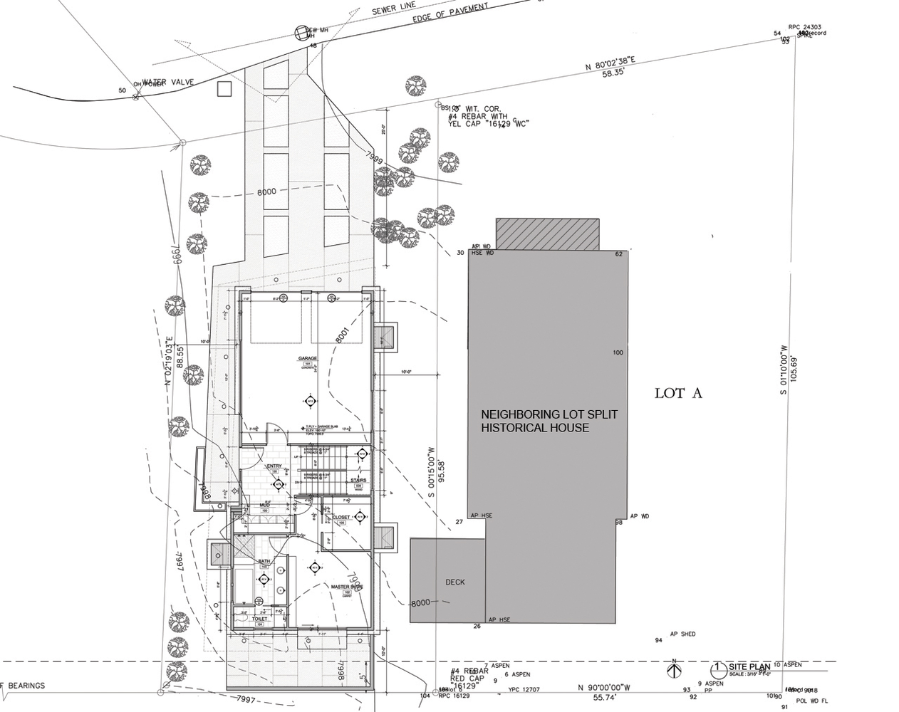
Situated in the East End of Aspen, this small property, designed by Studio B Architects, is part of a Lot Split and was required to ‘respond’ to its immediate Historical Swiss-Style neighbor in its massing, proportions and materials.
The challenge was to pay homage to this ‘City of Aspen Historically Deemed’ neighboring house, while still creating an original concept that catered to a cleaner, modern gesture that fit the clients.
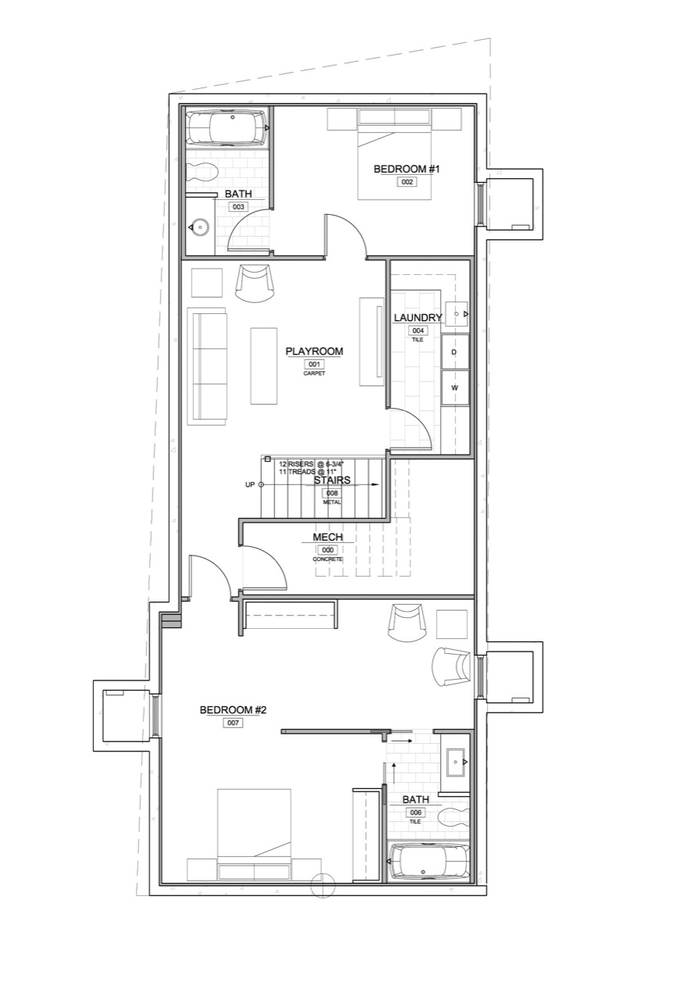
The house is three levels with a floating stair linking them and also serves as a light shaft to the lower level with its open detailing and light.
Since the neighboring house is less than 15 feet away, as well as being surrounded by dense trees and other smaller structures; creating a sense of privacy and home while still allowing the spaces to be wide open to accept as much light and views as possible became a very important aspect of this design.
One way that this was achieved was by maximizing deck space, but to have the solid railing dissipate and change in areas; so as to let the openness of the house breathe all the way through.
The public upper level is wrapped by a large walkway serving two decks and there is a spiral staircase from the rear deck that accesses the rooftop terrace.

























