
Triamant Haspengouw Velm
ARCHITECTS
Buro II & Archi+I
AREA
9200.0 m2
LOCATION
Sint-truiden, Belgium
CATEGORY
Apartments
YEAR
2010
PHOTGORAPHS
Filip Dujardin
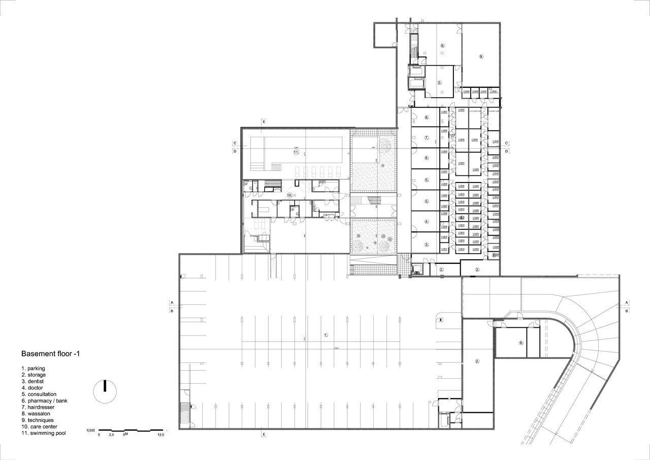
‘Care for Life’, the client, has developed an innovative vision regarding living and care in our modern society.
The development of a residential care campus in Velm (Limburg) is their pilot project.
The idea of living and caring flowing seamlessly into each other is spatially translated in the masterplan for the site.
The masterplan reiterates the central position of the existing castle complex, which acts as a beacon in the surrounding landscape.
The historical castle and the boarding school wing are to be renovated. The remaining school buildings are to be demolished and replaced by new high-quality buildings.
The complex houses various functions and residential typologies. The inner courtyard will function as a meeting place for the residents of both the campus and the town of Velm.




















