Taipei Flower Wholesale Market, Taiwan International Flower Trade Center Small Site For Plant Market.
TAIPEI FLOWER WHOLESALE MARKET, TAIWAN INTERNATIONAL FLOWER TRADE CENTER SMALL SITE FOR PLANT MARKET
H.P. Chueh Architects & Planners
ARCHITECTS
H.P. Chueh Architects & Planners
LOCATION
Taipei City, Taiwan (Roc)
YEAR
2010
CATEGORY
Commercial Architecture, Market
AREA
7300.0 m²
PHOTOGRAPHS
Jane Kung
In 2001, the Taipei City Government chose to relocate the Taipei Flower Wholesale Market and transform it into an International Flower Trade Center.
Contrary to the market’s previous temporal location, the new site is located within an industrial urban context allowing convenient transportation.
Subsequently, the new location merges logistical distribution and includes program for exhibition, education, and urban activities.
The site is located in Neihu, just 20 mins away from downtown Taipei straddling Ming Shan Street.
The total site area is a generous 28,764 sqm. West of Ming Shan Street is a larger site for cut flowers while the East site is reserved for the sale of plants.
A bridge connects the two sites allowing commercial opportunities and diversifying the commuter experience.
This new flower market aims to unite logistic industry, retail, tourism, and education as a new hub within the city.
MASSING AND URBAN EXPERIENCE
Contextually, the project is surrounded by logistical industries such as supermarkets and shipping companies.
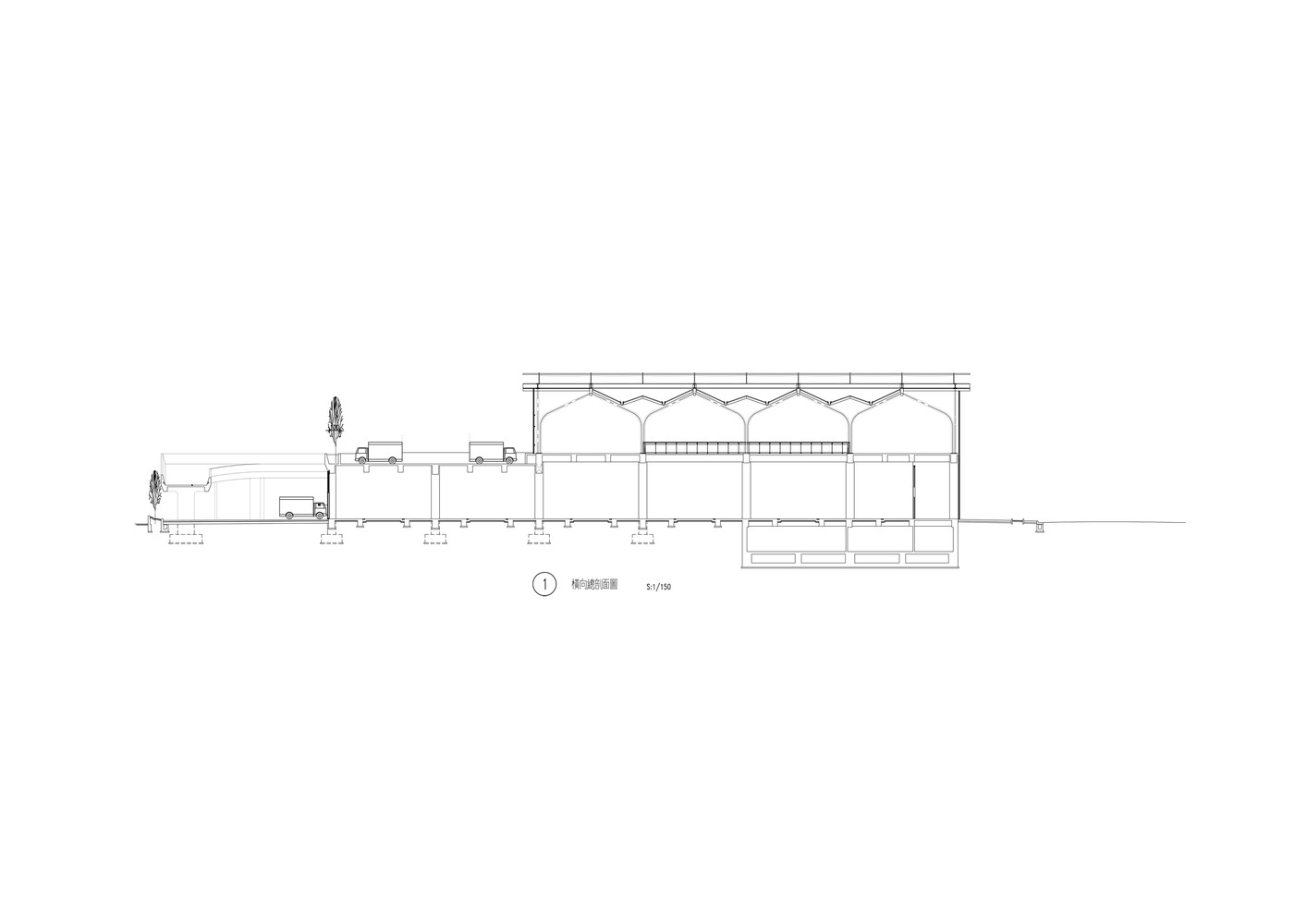
In comparison, the Flower Market requires large semi-open spaces such as loading areas, circulation for different kinds of vehicles, and large multi-use spaces.
The design strategy is to lift an urban roof containing required programs to cover the semi-open spaces.
This gesture serves to separate pedestrians from vehicles while allowing different activities to happen simultaneously
ELEVATION COLOR SYSTEM
Since visual identity is a main concern of the project, the building transfers floral color sequences to the facade’s louver system.
Spanning the length of the site, colorful panels on the facade aim to distinguish the program from its industrial context
PROGRAM
This smaller site is mainly for plant auctions and distribution. The first floor contains 86 retail shops and parking while the second floor accommodates a greenhouse, auction room, distribution space, storage area, and exhibition spaces.
GREENHOUSE STRUCTURE
Traditional floral greenhouses incorporate lightweight structures with mountain-shaped roofs. However, this is a disadvantage when considering wind resistance and weather durability.
To achieve the functions of both greenhouse and international exhibition, the new mountain shape is reflected in a large-span curtain wall system with efficient drainage
Components of the structure contain tree-shaped columns (21.9 and 32.4 cm in radius), wind resistance support columns with CNC scattered openings, and the curtain wall system roof.
Roof beams are supported by the tree-shaped columns and hung under the curtain roof. The span and the height of the greenhouse efficiently allows both plant incubation and exhibition functions.
This main structural system employs aluminum frame details and glass for a lightweight transparent feel.





















































