Satellites
ARCHITECTS
Studio Loop
LOCATION
Matsudo, Japan
CATEGORY
Houses
AREA
66.0 m2
YEAR
2010
Text description provided by architect.
The house is located on a narrow urban area in Chiba, Japan. It has an 11-meter high, 39.41 square meters building area, and 143.81 square meters as a total floor area.
The initial idea of this house has started with studying to solve a local zoning and planning laws distinctly limited possible form.
Within the complex zoning framework, we imagined fairly tall structure as compared to the neighborhood, and an irregular pitched roof has shaped to provide a maximum interior space and floor area.
The facade with this triangle shaped roof facing to the street has different sized square voids arranged to diminish in a sense of a scale of the house, and blends into the building context.
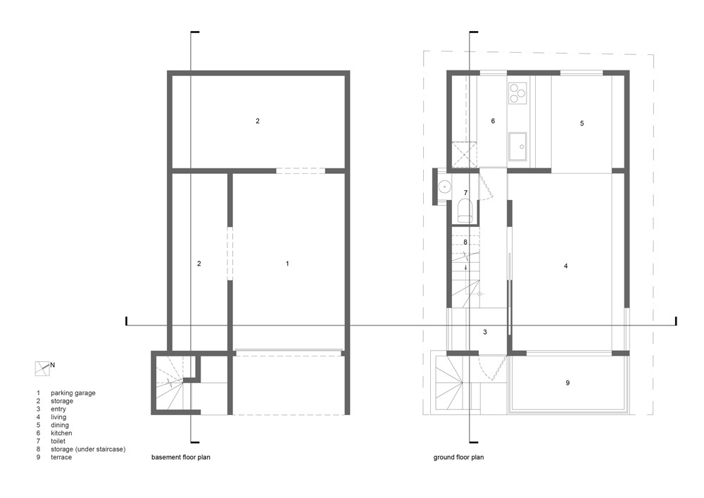
The interior space composition is characterized by a circulation that is one of the important factors to design a house in this kind of a narrow urban area.
Although each room needs to be adjacent to each other when you draw a floor plan, a spatial and volumetric relationship of each room in planning a vertical circulation is a key to create an enjoyable experience.
A wooden staircase connecting each skipped floor allows the family to act in many different ways such as circulating the small house, as a storage space, as a space for reading and studying, and as a lightwell of the house.
Continuously shifting a large space to a small space, a low space to a high space also brings a sensibility of not being a small house.
Not only the spatial characters of this house, but different floor materials and a pole connecting a master bedroom to a closet in the 3rd floor are favorite pieces for a young couple. A 3.3 meter black stained Japanese cedar wall in the living also welcomes to the raised “wa” dining for making a family to have a habit of eating and drinking at night.
Through the different sized openings of each room, space, light and materials mixed with the wishes of the family brings an expressive lifestyle.




























