ARCHITECTS
Khosla Associates
AREA
2148.0 m2
LOCATION
India
CATEGORY
Houses
YEAR
2010
Text description provided by architect.
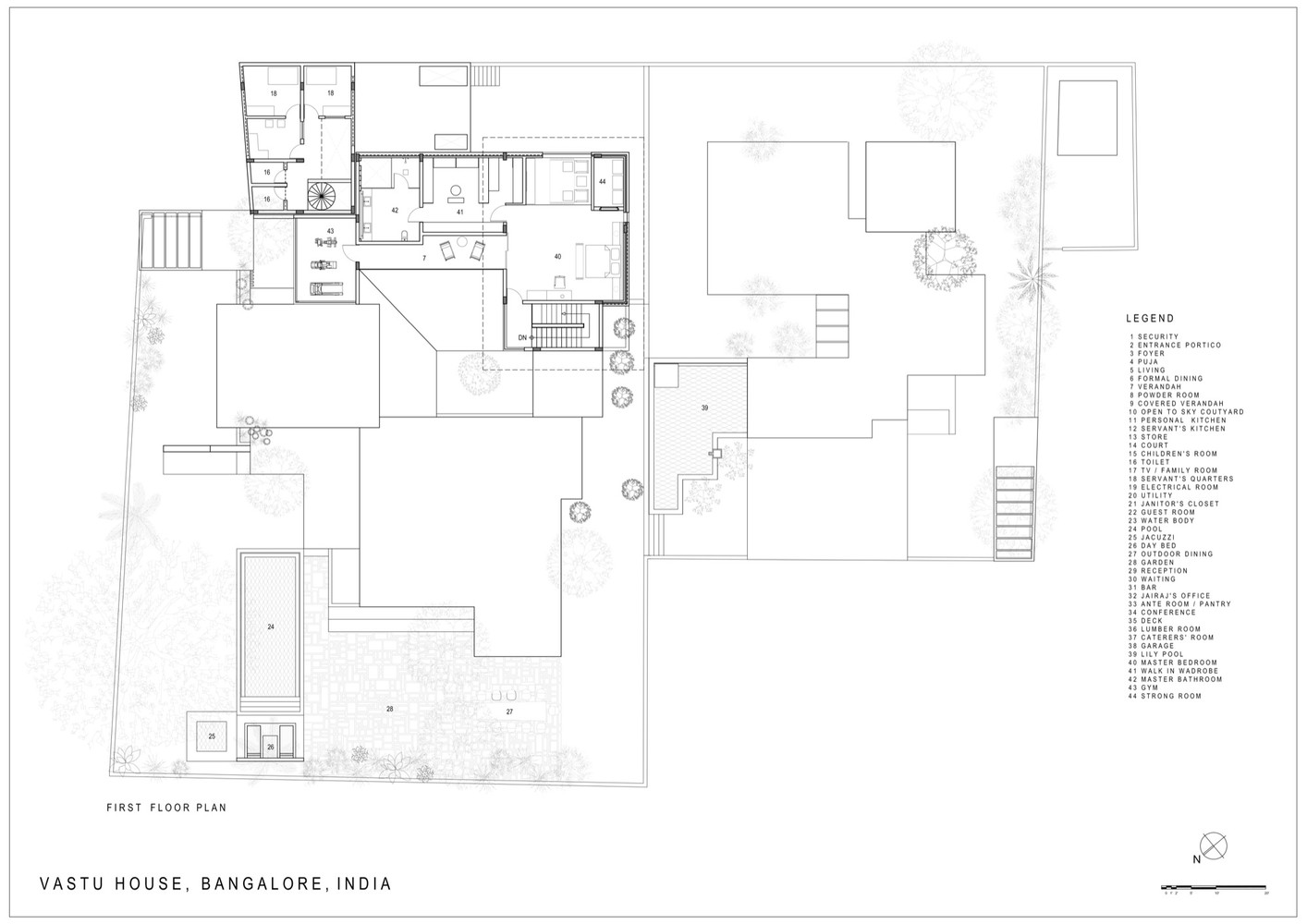
In keeping with the clients desire for a strictly Vastu compliant house, the placement of spaces in the house are in synch with the plan of the Vastu Purusha Mandala (the ancient Indian science of orientation and placement).
Thus apart from positioning the main areas of the house according to the elements – Master bedroom in the Earth zone (SW), kitchen in the Fire zone (SE), and the pool and entrance in the Water zone and Air zones (N and NE), - even positions of doors, the direction of the stairs, location of beds, wardrobes and desks and the positions of the wc’s in the bathrooms had to be in accordance with the correct energy flows.
In all other respects however, the clients gave us complete aesthetic freedom.
The biggest challenge while designing the house was to arrive at a visually appealing piece of architecture from a rigid program that dictated the specific locations of various spaces. Our approach was to respond to the traditional science, extract its essence yet arrive at a fresh and innovative interpretation of the same.
The house, built on gentle split-levels ascends lazily from north east (the lowest point) to the southwest (highest point). Its linear horizontal lines and vast cantilevered roof forms weave around the resident trees, and large expanses of glass blur the spatial boundaries between the garden and the house.
One experiences a sense of infinity while walking though the open plan of the living spaces, which are demarcated from one another by sliding, bi-fold doors and in some cases no barrier at all.
The house has two entrances. The private one faces a serene residential lane and the other looks on to a noisy main road. The house is located near the quiet lane, and the home – office is located near the main road. The home office acts as a sound barrier and while one is in the house nestled within an almost unbroken canopy of old trees one cannot perceive the cacophony of the main road.
Instead of having conventionally demarcated spaces, the house spontaneously responds to its surroundings by choosing to dwell upon lovely views from strategically placed rooms.
A linear hand chiseled stonewall and a low water body finished in lime green slate leads to the intimate foyer. A solid wall of Quera granite separate it from the living area. The informal intimate lounge area connected by a small flight of stairs with the living space faces a serene courtyard but also enjoys views of the garden and a vast lily pool.
Large bifold doors open the living room into the open court, where gentle steps chiseled out of local quera granite lead you to an open to sky courtyard with a single ornamental tree perched in its centre.
The verandah surrounding the internal courtyard has a sloping vernacular Mangalore tiled roof. The column supports for this roof are innovative. Load is transferred via large diagonal steel struts onto the hand chiseled stone columns. An outdoor dining table takes advantage of the temperate climate of Bangalore where living and dining in semi –outdoor spaces can be more pleasurable than sitting indoors.
The dining area is separated from the court by a channel of water flowing from south to north.
The Vastu house is climate sensitive and takes advantage of Bangalore’s temperate climate all year round. Large overhangs combat the fierce monsoons; the southwestern facades of the house are shielded from the fierce summer sun, with the north side completely transparent to the property’s lush tropical foliage. In every space there is free movement of air and light.
A flight of wooden stairs leads you from the courtyard to the Master Suite on the first floor. The Master Suite has a large sit out, an attached gym, walk in closets and a courtyard bathroom filled with natural light.
There is an interesting mix of luxe and natural elements in the Vastu house – rough stone steps, pebbled courts, exposed concrete ceilings and polished cement floors contrast well with polished Italian marble, fine teak furniture, velvets and silks.
The predominantly white facades of the exterior are broken with select walls in rough hewn stone while some interior accent walls are deliberately punched out in saturated Indian colours – deep magenta, orange and neel blue.


















