
Maximum Garden House
CATEGORY
Houses
LOCATION
Singapore
YEAR
2010
Text description provided by architect.
One questions the sense of ‘landed-ness’ in a typically maxed-out envelope of a semi-detached typology.
What is usually left over after the building footprint is no more than a slender planting strip on the ground.
Hence, one of the prime motivations of this house was to seek out more garden spaces/surfaces in an attempt to redress this imbalance while we fulfill the client’s brief.
The mother of 2 young boys wanted a house where she could keep an eye on her kids without the need to be in the same space.
Loos’s Raumplan, somehow, came to mind.
THE PICTURESQUE LANDSCAPE
The vertical wall planting set within a niche along the front boundary wall and the shrubbery on the car-porch roof, reclaim surfaces otherwise normally neglected as canvasses for beautification.
THE PLANTER SCREEN
Enclosing part of the building façade on the upper floor is a layer of planting system we devised to behave more like a curtain wall. Its primary function is to perform as a privacy screen and to keep the rain out.
We were particularly thrilled with this detail as it approximates to an organic envelope. The curtain of plants coincides building performance with man’s affinity for nature.
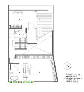
THE SLOPING ROOF
The sloping roof terrace is derived from the staggered section of the house and retained a continuous flow from the indoor.
We were nostalgic with the idea of getting up on the roof, itself. The sloping roof-scape reminds us of an undulating terrain.
We imagined the inclined plane to be more conducive to sit or lie down and have a conversation while looking out in the same direction, sharing the same moment, like one do in a park.





















