LANDSCAPE
Suzanne Turley
ENGINEER
Holmes Consulting Ltd
TEAM
Davor Popadich, Shane Taylor, Andrew Patterson
LOCATION
Auckland, New Zealandl
CATEGORY
Houses
AREA
395.0 sqm
PROJECT YEAR
2010
Text description provided by architect.
Patterson Associates have created this Summer residence on Waiheke Island. A place famous for fine vineyards with illustrious names such as Cable Bay, ManOWar and Passage Rock.
This home is located on a steep coastal escarpment above a tree fringed white sand beach on its northern coast.
The vineyards are there as a result of Waiheke’s temperate coastal climate and some rare geology seams of pyrite rock criss cross the island like veins.
Its this geology that give the grapes, primarily Cabernet Sauvignon, Merlot and Malbec, their distinctive Waiheke taste.
The home uses this same local pyrite strata as a building material to create a sense of place in Architecture.
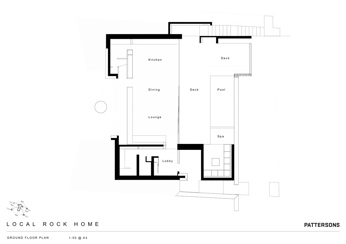
The pyrite is a dense, colourful hard stone which can be stacked, etched and layered into earthy walls and textures. The rock mass of the home is like a bridge, open both sides to exploit both the beach frontage and the afternoon sun.
Under this, its main living area nestles safely into the escarpment between a spacious easterly ocean-front pool terrace and a grotto-like western courtyard to the west. The owners often use this grotto as an outdoor movie theatre.
Bedroom suites are grouped above as finely scaled, romantic and louvred lookouts in the canopy line of the trees lining the clear waters of the beach. Behind the grotto is an intimate bunkroom.
The home has been designed to be sustainably ‘green’ and uses an innovative air heating system to provide an efficient, even temperature gradient right through all levels, as well as incorporating an onsite waste treatment station and a reticulated water system with a large rain storage facility.




















