
Watha T. Daniel-Shaw Library
PROJECT TEAM
Christiane Dejong, Nathan Hoyt, Cody Mcneal, Scott Phillips, Kelly Powell, Semaj Tucker
CONTRACTOR
Forrester Construction Company
LANDSCAPE ARCHITECTS
Lee And Associates
CIVIL ENGINEERING
Delon Hampton & Associates
STRUCTURAL ENGINEERING
Delon Hampton & Associates
STRUCTURAL & CIVIL ENGINEERING
Delon Hampton
LIGHTING CONSULTANT
Mcla
MANUFACTURERS
Herman Miller , Icestone, Kartell, Knoll International, Lee Modular, Spacesaver, Swedese Mobler, Vitra
AREA
22800.0 ft2
PHOTOGRAPHS
Paul Rivera, Davis Brody Bond Aedas
LOCATION
Washington, DC, USA
PROJECT YEAR
2010
CATEGORY
Library
Text description provided by architect.
Watha T. Daniel/Shaw Library is located along Rhode Island Avenue, NW at 7th Street, on a triangular urban site near Howard University. The new 22,800 square foot library marks this important intersection as a civic and educational node for the community. Filling the 9,850 square foot site, the building is comprised of three stories— one below grade and two above.
The entry plaza at the east end of the site welcomes the public to the library and displays a 22 foot sculpture by local artist Craig Kraft. The main lobby provides access to the lower level which houses community spaces including a 100 person multi-purpose room, as well as access to the library proper.
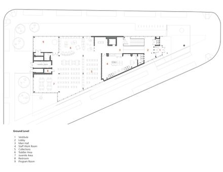
The ground floor houses the new materials and catalog stations for the general collections, the children’s library and the main service point and staff area. The upper level of the library will house the bulk of the adult collection, including reference and periodical sections, young adult and adult reading rooms.
There will be online catalogs dispersed throughout the floor, with access to the DC Public Library electronic resources available at all locations. The library also offers two 10-person conference rooms and individual study rooms to allow for collaborative work in a non-disruptive setting.
Designed to meet LEED Silver Certification, Watha T. Daniel/Shaw Library incorporates a displacement air system, solar control and daylight management and extensive use of recyclable and renewable materials. The building utilizes a corrugated, perforated aluminum screen wall system across its southern façade.
With a 40% open area, the screen wall sits 3 feet in front of an expansive glazed curtain wall and provides sufficient shading of the upper level reading room while allowing natural daylight to enter the space. The shading system allows a reduced dependence on artificial lighting and its related energy costs as well as protects the Library’s collection from harmful solar exposure.
Peter D. Cook, AIA, principal in charge of design at Davis Brody Bond Aedas states, “The Library will anchor the neighborhood by providing a civic facility rich in aesthetic, environmental and programmatic assets that is representative of DC Public Library’s commitment to a standard of excellence for all residents.”










