
Residential And Tourist Facilities In Milan
ARCHITECTS
aa-ls
ARCHITECT IN CHARGE
Luigi Serboli, Boschi+Serboli
PHOTOGRAPHS
Luigi Serboli, Mauro Zanardelli
PROJECT YEAR
2010
LOCATION
Milan, Italy
CATEGORY
Industrial Architecture
Text description provided by architect.
The area interested by the project, once occupied by an industrial plant, has undergone a profound formal and cultural metamorphosis, moving from a context linked to techno-morpho-typological features typical of the ‘60s to a new appearance, which can dialogue with the social, material and cultural present of the city.
The project for the realization of a condo hotel and of a polifunctional structure for higher education and related accommodation facilities, regards a lot situated between Ilarione Rancati road and Stamira d’Ancona road, where once the industrial plant was.
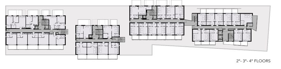
The two buildings develop along two infrastructural axes, the condo hotel, made up of 96 apartments and 172 rooms, occupies the North front, the university building faces East.
The hotel, distributed over five buildings, is arranged on a common base: the ground floor, which hosts the horizontal paths to reach the stair blocks, houses the common services and mediates the relationship between the urban context and the internal green area.
The height of the five buildings, calculated starting from the common slab, varies between 5 and 7 floors. The buildings destined to the residential hotel, except for the first one, are finished with a smaller extra floor.
The nature of the condo hotel lies between a domestic dimension and that of a temporary stay: in this project we chose to privilege the residential aspects, completing the units with a balcony.
The balconies contribute to the design of the facade differentiating the side overlooking the internal garden, from the side giving on the city.






























