Entre Cielos Hotel & Spa
AREA
597.0 m²
PROJECT YEAR
2011
Text description provided by architect.
Rest and relaxation were the main objectives of this assignment.
Its location on the outskirts of the city of Mendoza and its natural environment of vineyards, fruit trees, poplars and views of the Andes were part of this tapestry of Mendoza where we will develop the tourism complex.
In a land of an old vineyard of 100 meters of frontage and 400 in length, the project is structured from a pedestrian path that connects its buildings in an east-west orientation.
This situation forces the visitors to leave their vehicle at the access parking lot to enter the campus on foot, as an act of neglect and separation from the outside.
A series of outdoor spaces that occur along this path will be discovered and lived in a playful experience that attempts to arouse the visitor’s sensitive attitudes and to predispose them to experience powerfully the complex.
The building’s design, spa and hotel, starts from the almost playful intention of having a number of small items that will be grouped and arranged strategically shaping the particular interventions.
Thus, we think that the buildings designed experience two types of spaces, the space defined in-between these elements positioned by seemingly arbitrary location at the land and interior space that exists inside themselves.
The space defined by “the in between" is empty that slips through the elements, is a space that shrinks and expands or rejecting or looking for natural sun- light, opening or closing views and constantly leads us to the complex travel and experimentation.
Thus the act of walking through this space defined by concrete elements that house the rooms, in a space that is diluted horizontally finding points of intensity given by the use of light and the relationship with the natural environment becomes a sensory experience in itself.
In the case of the Hotel a horizontal concrete slab unifies and defines the space vertically.
The floor is the only element that reacts and adjusts to changes in the natural slope.
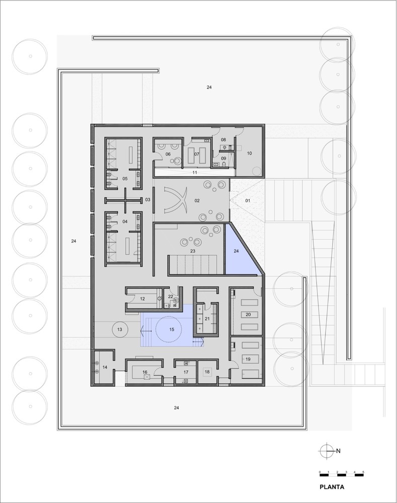
Elements that define the space are located with the intention of creating a course of baths, steam and massage rooms, add a perimeter wall that encloses it, deprives it of its visual relationship with the outside world and turns it into a space that arises from light.
So small openings in walls and ceilings create backlight, details, rates qualifying spaces and motivate senses.
While the hotel addressing a more contemplative and experimental relationship with natural context that surrounds it, the spa provides for strict introversion.
By uploading you mid-level to access the hotel via a ramp from the open green space, the spa is in contrast, placed half a level down.
You have to take a ramp that is enclosed in walls of bamboo that precede an intermediate half-buried, pre-access to the building on a clear intention of slowing down and shelter the visitors.
The fluidity of the hotel's public spaces with the outside articulates a clear relationship with recreational areas, however the spa's walls arising from cane crop drying, creating a veil of opacity, shadows and sounds around the building Spa, trapping it in an enclosure of privacy and quiet.
The stamp and personality of exposed concrete provides the hue tectonic sought for these areas. Where light articulates the sensitivity of colors and textures provided from a precast concrete formwork in pine wood 4 cm wide, built as part of expressiveness and personality of the spaces.













































