
Courtyard House VW
ARCHITECTS
Areal Architecten
PHOTOGRAPHS
Cafeine©Thomas De Bruyne
AREA
496.0 m²
YEAR
2011
LOCATION
Affligem, Belgium
CATEGORY
Houses
Text description provided by architect.
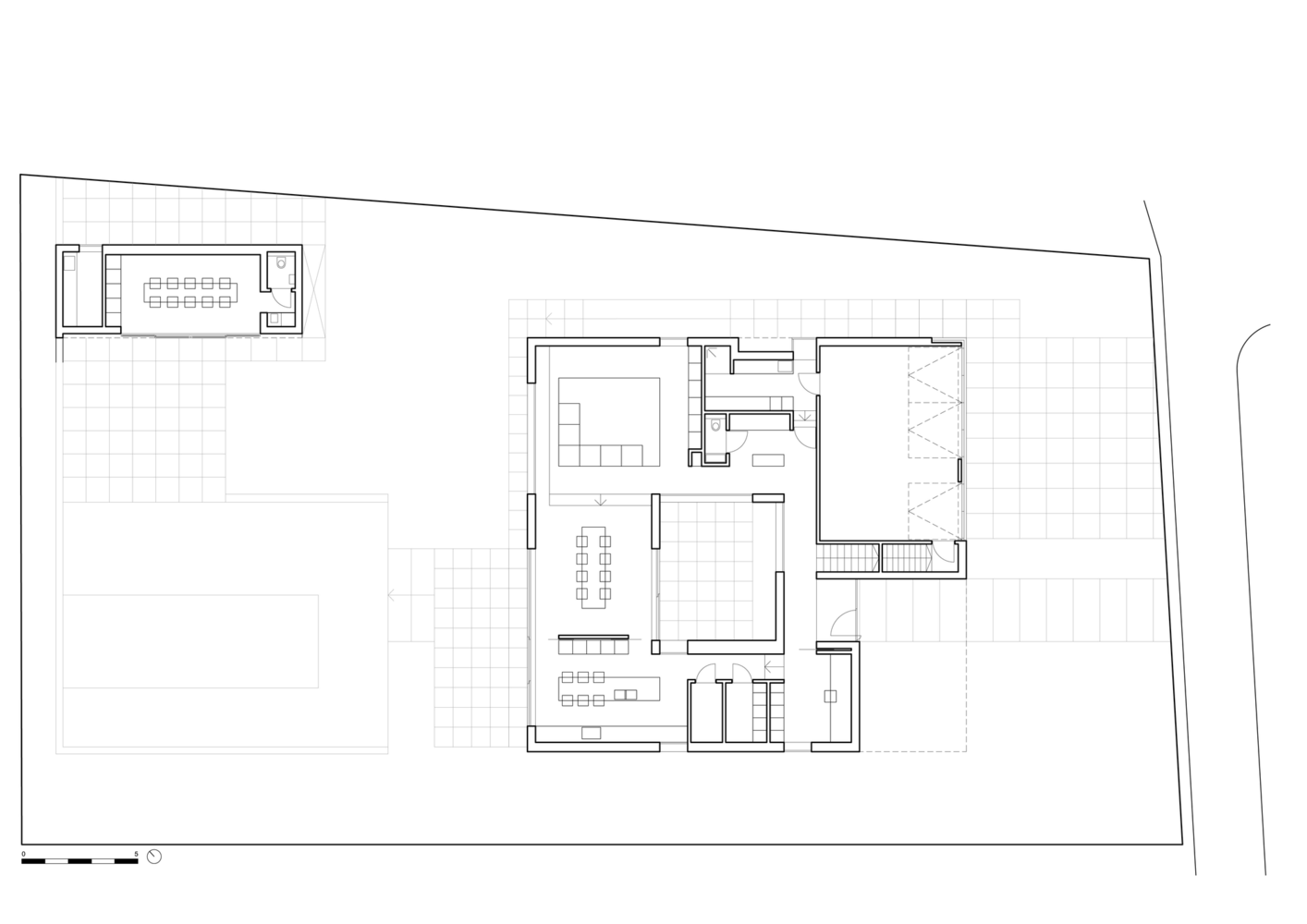
The task involves building a spacious family home in rural Affligem, near Brussels.
The area with a width of 25 m has a significant height, rising to the rear of the plot.
The wishes of the client and the optimum utilization of the potentials of the plot led to the design of a large volume that reaches to the boundaries of the building plot.
Around a sheltered courtyard organizing the functions of daily life as a contemporary farmstead.
The topography of the land is respected and this creates subtly different relationships between indoor and outdoor space.
The upper floor has been implanted in a way that the insolation is not hindered, the entrance is provided with an impressive cantilever and all rooms enjoy a splendid view of the landscaped garden.
The contract was extended with a design for the garden paving and a pool house, which is in harmony with the landscaping and the pool to create an oasis of peace.
By light and textured material choices a surprisingly southern atmosfere is created in this northern climate.




















