
CRAM Foundation For The Rehabilitation And Conservation Of Marine Animals
CRAM FOUNDATION FOR THE REHABILITATION AND CONSERVATION OF MARINE ANIMALS
Jordi Hidalgo Tané (architect), Daniela Hartmann (interior designer)
ARCHITECTS
Hidalgo Hartmann: Jordi Hidalgo Tané (architect), Daniela Hartmann (interior designer)
PHOTOGRAPHS
Filippo Poli
CATEGORY
Rehabilitation Center
LOCATION
Barcelona, Spain
YEAR
2010
AREA
10000.0 m2
Text description provided by architect.
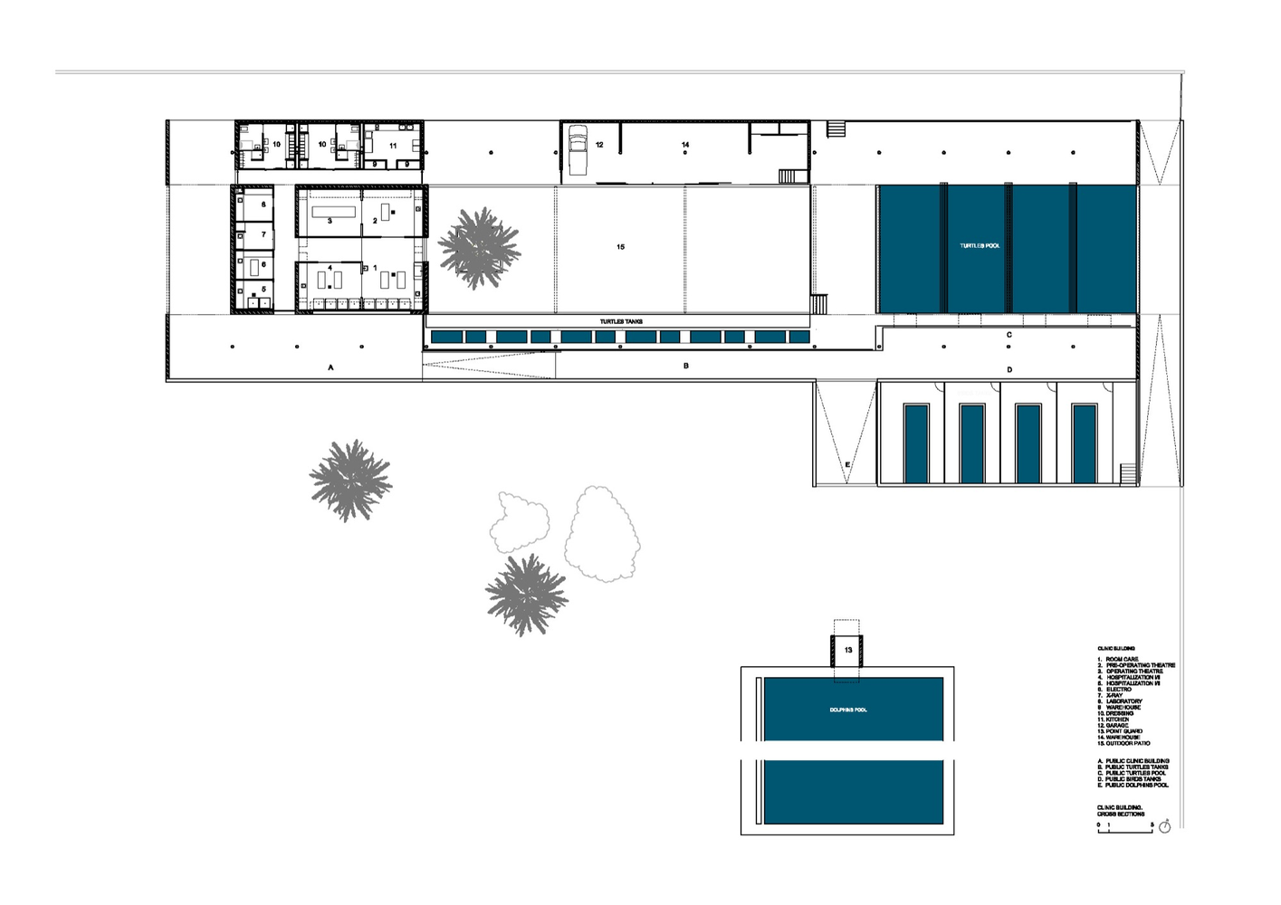
CRAM Foundation is an organization dedicated to the protection of the environment and the species that inhabit it.
Its main activity is the clinic and rescue of endangered marine species, which will later be reintroduced to the wild.
The Foundation also carries out different lines of work in conservation investigation and education, all accompanied by social awareness campaigns on the state of the marine environment and its problems.
The new facilities of the CRAM Foundation are located in the former golf course of El Prat de Llobregat.
The project incorporates part of the existent constructions like two outdoor pools and a building, housing the former Kindergarden of the Golf Club.
This building was totally refurbished and is designed in part to the administration of the whole complex, and in part to inform and disseminate the visitors of all the activity of the CRAM.
The clinic building is newly built and placed in the existing pool area. It consists of indoor and outdoor spaces extended on a surface of more that 10.000 sqm, where the task of healing and care of the turtles, dolphins and birds are performed.
The third building, dedicated to post-mortem studies, is also a new construction, housing the autopsies and research program.
The configuration of the three buildings allows public guided tours without any interference with the daily work of the foundation and the welfare of the animals.





























