
House of Continuous Wall
ARCHITECTS
Akitoshi Ukai/AUAU
LOCATION
Kasugai-shi, Japan
CATEGORY
Houses
AREA
110.0 m2
YEAR
2010
PHOTOGRAPHS
Suzuki Ken'ichi
Text description provided by architect.
This house is a small house that builts along the way of Kasugai City for a young couple and the two children.
The house builts in the south, the east, and the west, and touching road south the north is short in the north side.
Making an internal space that light reached in the limited box became a theme.
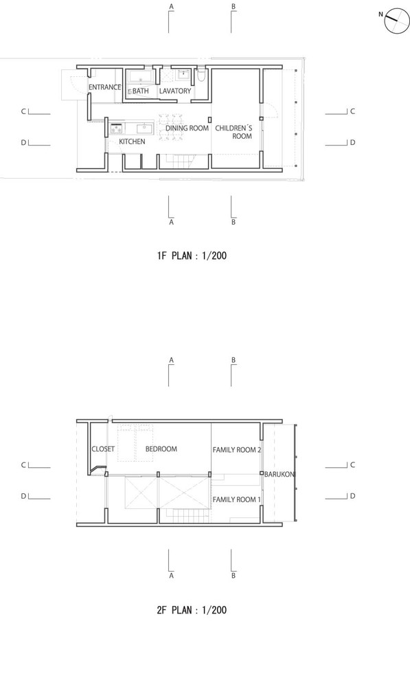
The function necessary for life was arranged to zonal once, and it was put in the fold box three-dimensionally. In addition, the wall that held the structure concurrently was turned over, continued in the gate type, and the space was divided loosely.
We can feel the extension by the expansion of expectations to the following space by invisibility depth and the surface area.
Three-dimensionally, a thin slab was gradually accumulated from the 1st floor to the 2nd floor with relations in a human scale, and it aimed at a furniture sense of intimacy.
The box stairs were prepared in the stairs and the difference of extent in which beginning and the Steller's sea lion sitting that fused sitting and the stairs were put was prepared at the center of living.
It became a house where the extension was felt also that the distance of the family was short by a three-dimensional device though it was compact like this.
The suspender door of the polycarbonate is hung on the center of the house, it functions as an illuminator at the same time as partitioning the space in changeability at the time of whiling and making the communication inside a family various, and the center of the house is produced like the lantern.
In the outside, the road is placed and there is a grove in the Shinto shrine. When a big window was opened toward here, and the sky light was obtained, I felt the grove from an internal space though it was a north side. Moreover, the outer living was set up in the south so that valuable direct light from the south may reach the interior of the house, and it composed of the grating of silver.
Light is picked up, and it amplifies, and as a result, it indoors takes, and light has been reached to kitchen on the north side firmly with a lustrous, white wall, ceiling, and open ceiling. It is designed by using the difference of living to air out futons, beginning for the indoor drying is given to the indoor indirect light, and it meets the demand as the house of a child-nurturing period though the outer living has the function of the cloth-drying place.













