
Fagerborg Kindergarden
ARCHITECTS
Reiulf Ramstad Arkitekter
LOCATION
Oslo, norway
CATEGORY
Kindergarten
AREA
1200.0 m2
YEAR
2010
Text description provided by architect.
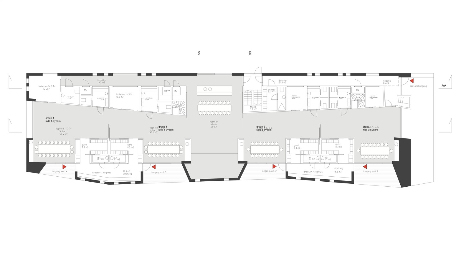
Reiulf Ramstad Architects has been involved in designing a new kindergarten for Fagerborg Congregation in central Oslo. The kindergarten offers 2 units for children between 1-3 years old and 2 units for children between 3-6 years old. Gross building area is around 1200m2.
There are many cultural heritage guidelines to be considered in the project site. The area is characterised by residential buildings from 1900-1950.
As a requirement from the local authority, the kindergarten is to have a contemporary expression. With its location in the middle of a small city park, the kindergarten has an outdoor area that is protected like an enclosed garden.
The planning solution enables the 4 kindergarten units to function both independently and together as required. All units share a common area and a kitchen in the heart of the building. Administration is placed on the upper floor separate from children areas.
PROCESS
Fagerborg congregation committed Reiulf Ramstad Architects to develop and design a brand new nursery at Fagerborg in central Oslo.
An existing nursery and a park of both poor and inappropriate standard was sanitized to make room for the newly completed Fagerborg Kindergarten.
The new kindergarten comprises a total of four units - two of which are small units. The project has a total area of 1200 m2. The architect has been involved from the initial planning and followed the process from programming to final construction and completion. Reiulf Ramstad Architects has designed both the building and the outdoor facility area
Kindergartens are all too often made up by a basic or random and often very poor architectural design. The Fagerborg Project did not want to be a part of this trend but rather give the kindergarten an important priority in order to develop a building with a stimulating environment for the next generation.
GOAL
In nature, top seeds needs the best soil for the best growth conditions to flourish. This is the same for humans. Children are the citizens of “tomorrow” and the resources of the future and it is important that this group have stimulating and developing physical limits in their everyday sphere.
Therefore, the objective of the program- agreed upon by both the client and the architect – was to create a nursery that would have a rich architectural register and become a house of character to encourage the development of character - a meaningful architectural framework for children's important first phase of the formation and development of the Childs experience outside the family.

























