
Wolfe Center For The Arts
ARCHITECTS
Snøhetta
LOCATION
Bowling Green, OH, United States
ARCHITECT OF RECORD
The Collaborative, Inc
CATEGORY
PROJECT YEAR
PHOTOGRAPHS
Bruce Damonte
The new collaborative arts center at Bowling Green State University in Bowling Green, Ohio contains classrooms as well as production and studio spaces to link students and faculty in the School of Art, the Department of Theatre and Film, and the College of Musical Arts.
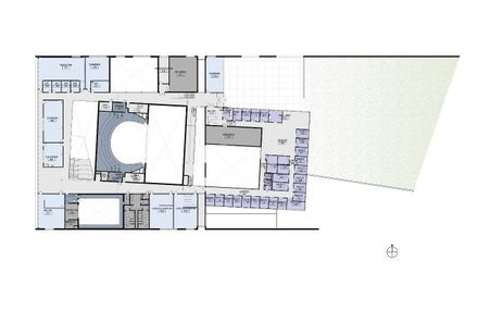
The Wolfe Center has a unique program that unites a diverse range of art studies into a socially enterprising facility meant to encourage lively interaction among students and faculty. Plans for the building include three performance spaces: a proscenium theater

That will provide space for large-scale productions of musical theater, opera, and classical drama; a studio theater for the presentation of more diverse artistic programs, including theater for young audiences and productions of new plays, and an actor’s theater to provide space for experimental productions integrating the spoken word and body movement with digital and sound technology.
Snøhetta has created a grand open hall that greets the visitor from the main entrance. Sunlit and spacious, the lobby provides views upward to the lounges, classrooms and studios of the art, music, and drama departments on the second level.
Situated at the heart of the building, the proscenium theater seats 400 and can be used for a variety of performance programs. It is designed in the style of the great Broadway halls found in New York City and London.
To meet the highest contemporary criteria for a theater of this kind, Snøhetta is working in close collaboration with the internationally recognized theater planners Theatre Projects Consultants and Akustiks.












