Yallingup Residence
ARCHITECTS
Wright Feldhusen Architects / Tim Wright
STRUCTURAL ENGINEER
Carnegie Associates
LOCATION
Yallingup Siding, Australia
CATEGORY
Gallery
Text description provided by architect.
The site is a rural location with spectacular valley views to the east. The house is a holiday residence for the client and their extended adult family, and their children. The client is involved in steel fabrication, and therefore steel structure was part of the construction basis.
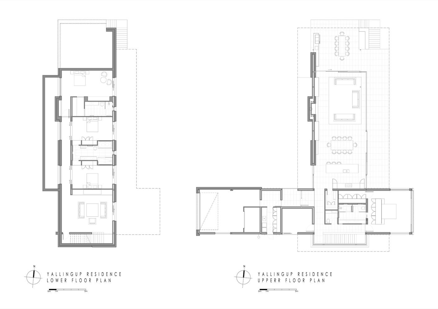
The main living area is a large glassed pavilion that sits over a massive stone bedroom suit which is nestled into the hill.
This provides perfect sound and privacy separation from the activities above. The main bedroom suite is a wing that penetrates and pokes through this pavilion.
This is a continuation of the garage and laundry areas which creates a western courtyard. The entry is at the intersection of these elements.
The transparency of the main living area is critical to swallowing the view. The steel roof structure ensured the roof floats over with butt jointed glass.
The materials are selected to weather with time and also contrast with the predominantly modernist architecture.
The main external living areas are to the north and are protected by large roof overhang.









