
Harold Street Residence
ARCHITECTS
Jackson Clements Burrows
PROJECT YEAR
2011
Text description provided by architect.
The Harold Street Residence is a new two storey dwelling located in a heritage overlay area of Middle Park. The brief called for a new residence for a couple with university age children that would accommodate their evolving family needs.
The ground floor provides the primary residence for our clients, engaging both with the street and garden, whilst the upper level provides more flexible living areas and bedrooms for their children, visitors and grandchildren.
The site is the north-west corner of the Neville and Harold Street intersection. The buildings on the other three corner sites are built hard to the Neville Street edge and are typical of the surrounding context - red brick single storey Victorian terraces.
The siting strategy locates the building along the Neville Street edge of the site, effectively mirroring the other three corners of the intersection. This enabled the creation of
a long garden on the northern and more private half of the site. On this northern facade, a more sculptured interface is created, providing a varied engagement between the garden and living areas.
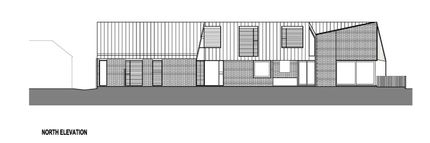
The original building on the site was a double storey 1930’s cream brick apartment building that sat as an island on the site and within its' wider context. Our response attempts to engage with the site's heritage context through its architectural form and detailing, to explore the public/private nature of the corner site, and to complete the ‘fourth corner’ of the intersection. The twisting form of the zinc clad roof was chosen to reconcile the building with its single storey surrounding context and the requirements of the clients brief.
To the Harold Street frontage, this form can be viewed as an abstracted version of the pediments and gables of surrounding roof scapes, and allows the house to be perceived as single storey at the corner entry. The roof sweeps upwards from the corner along the Neville Street frontage following both the natural movement through the house and the programmatic requirements of the internal spaces.
The choice of pressed red brickwork to the external facades reinforces its presence as part of the surrounding context. The brickwork along Neville Street provides a robust public edge to the house.
Articulation is added to the surface through ‘hit and miss’ brick detailing and Webforge screening. These gestures are complimentary to the Victorian fretwork and decorative detailing that defines the ambience of the site location.
They provide scale and articulation to the wall plane, screening and security to the street edge, cross flow ventilation and cooling, and diffuse light to the internal spaces.At night this condition reverses and the building glows invitingly to the street. In summary, the building is a sculpturally engaging family home that acknowledges its heritage context in a positive way.

























