Pool At Fragrant Hill
Text description provided by architect.
This site is at the foot of Fragrant Hill on the western outskirts of Beijing. The client, a swimming-enthusiast couple, asked for a swimming pool annex next to their main housing area. It will become a place for and relaxation meditation.
The design focuses on two main points. Firstly, the courtyard’s relationship to the existing house is enhanced through an L-shaped building form.
It divides the original courtyard into two smaller spaces. This gives the courtyard front and back faces while shielding it from neighboring homes and streets.
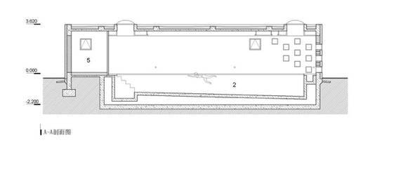
The plan consists of a pool, facility room and rest area. The trapezoid-shaped room is created from two long walls parallel to the property boundary and the existing house.
This forced perspective creates an illusion of a deeper interior. The rest area contains a sauna, a skylit shower, and a lounge where one can sunbathe after swimming.
The second consideration is to bring nature into the pool. The skylights and windows let in sunlight and reflect the passing of time during the course of a day and seasons of the year.
There are three sizes of window openings: 1200mm, 800mm and 400mm.The fenestration is designed according to lighting and privacy needs.
There are more openings in the southwest facade, facing the courtyard, and less in the east façade adjacent to neighboring home.
There are also two skylights located at each end of the pool. By creating reflection through the water and on the wall, the sunlight continually changes and animates the space.
Through these openings one can look upon the summer trees’ lush foliage and winter snows, further enriching one’s swimming experience.The exterior wall is cladded in stone from a local quarry. The color and texture is close to the original brick, maintaining a harmonious relationship with the surroundings.

















