
Forest View House In Japan
ARCHITECTS
Shinichi Ogawa & Associates
MANUFACTURERS
panoramah!®
YEAR
2011
LOCATION
Japan
CATEGORY
House
Within the forest park sits the house: a concrete shell of the simple form like box culverts piled to 2 layers.
In this house, all details have been designed with a sensitivity to the context, creating a place to live in harmony with the landscape.
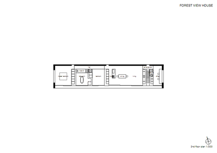
Primary accommodation is located on the 2nd storey, floating amongst the forest tree tops.Internal spaces are organised by the primary structural cores, which also contain all services and storage, allowing the living spaces to remain clear, pure and uninterrupted.
Large areas of glazing take advantage of expansive views to the South and when this glazing is opened, inside and outside are united.
The sash of South elevation is the first use of the Swiss company Panoramah's glazing system in Japan.
(http://www.panoramah.com) The frame, and the tempered glass act together as one structural unit which allows the frame to remain as slim as possible, maximizing the beautiful forest views and unifying inside and outside.
Nature reaches in through the windows, and the white luster of the floor tiles accentuates the external environment. The mountain climate allowed the use of passive ventilation.
The combination of large windows to the South and small windows to the North achieves a comfortable room temperature in the summer without the use of air conditioning.
Fair faced concrete was chosen as the building envelope to resist the strong mountain winds and dense fog, however, over time the external surface will weather and the building will become integrated with the woodland environment.





















