
Wissioming2
ARCHITECTS
Robert M. Gurney Architect
PROJECT ARCHITECT
Brian Tuskey
MANUFACTURERS
Kalwall®, Lutron, Artemide, Bega, Caesarstone, Franke, Hope's Windows, Lightolier, Sherwin-williams, Stonco, Vola, Anta, Epdm Roofing, Janegray, Nitterhouse, Omnia Industries, Pompeii, Sistemalux, Toto, Una-clad, +1
YEAR
2011
LOCATION
Bethesda, United States
CATEGORY
Houses
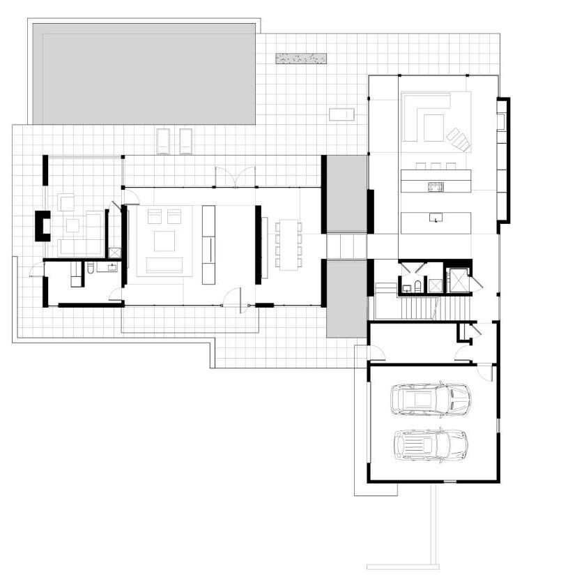
Located in Glen Echo, Maryland, just outside of Washington, DC this new house is sited on a sloping, wooded lot with distant views of the Potomac River.
The house is positioned to preserve a majority of mature trees and is oriented toward the river views and south facing slope.
The house is organized into two volumes connected with glass bridges that span a reflecting pool which separates the volumes.
Secondary volumes intersect and overlap the two larger structures rendering the composition more dynamic.
Material changes in the various elements intensify the relationships.
Expanses of glass open to a terrace organized around a swimming pool with two “infinity” edges reinforcing the connectivity to the wooded landscape.
The interiors are painted with light. Walls constructed with slender, steel window frames composed in “Mondrian” inspired patterns combine with translucent panels, wenge and white oak millwork and Pompeii Scarpaletto stone to define interior spaces.
White terrazzo flooring juxtaposes the black window frames and unifies the volumes on the main floor.
This house is designed to provide spaces which are organized to integrate its inherently picturesque site in a way that the architecture becomes subservient to the landscape that surrounds it.






















