ARCHITECTS
MA-style architects
AREA
69.56 m²
LOCATION
Makinohara-shi, japan
PROJECT YEAR
2011
PHOTOGRAPHS
Kai Nakamura
Text description provided by architect.
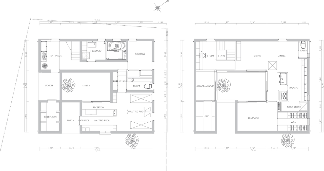
The courtyard, known as hanaha, creates a space of spiral movement and familial interaction.
The family can move spirally around the flowers and trees. To observe and enjoy them from different perspectives.

T +81 548 230970 F +81 548 230971
Ma-Style Architects 株式会社エムエースタイル建築計画
212-38 Hosoe Makinohara-City, Shizuoka, Japan 〒421-0421 静岡県牧之原市細江212-38












