AREA
179.07 m²
YEAR
2011
PHOTOGRAPHS
Tatsuya Noaki
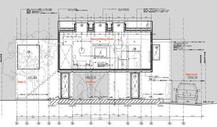
This is a house for a family of three in a residential neighborhood of suburban Tokyo. Surrounded by properties subdivided through generations of time, this site maintains its original state.
Albeit having plenty of land relative to others, six different adjacent properties with homes built tightly to the boundary leaves the project site with a condition, which limits the project from fully enjoying the advantage of having a deep street frontage with the river.
Such meticulous condition of uneven contextual grain at a time of transition from continuing growth and expansion, it shall undoubtedly be emerged in mass in the residential neighborhood.
As such, the theme for this project is the approach to architecture and exterior space that receives undulating peripheral density.
Here, three rules particularly regarding the exterior space were set. The first rule is to not confine itself from its surroundings. Instead of self concluding within the property unit.
Much like a courthouse, create a coordinated environment with adjacent exterior space of large and small, buffing those varying density while sharing the spatial openness, circulating air, and natural light.
Next rule is to avoid creating a cul-de-sac. In other words, having an exterior space free from stagnation that also partially takes on an important visual and physical element of the project.
This space is not a residual space of the inside, but an active part of the house that simultaneously exists as an integral section to the neighborhood. Finally, the last rule is to conceive this exterior space as a volume, and not a plane.
Re-conceiving the space typically left blank in upper floor plan drawing as a conceptual "garden", it materializes the external space forming another invisible volume within the property.
What these three rules deduce to is a layout and a form with an approximating interior and exterior air volume that alternate in both horizontal/vertical dimensions.
The naming has obvious connections to the classical style it originated. The reason for using the urban vocabulary is in our anticipation towards to the future outcome of a suburban residential area in Japan.
It is no coincidence if the exterior form appears to be an intermediate between a single house and a housing complex. (Tomoro Aida & Toshimitsu Kuno)






















