
Private Clinic In Champigny
ARCHITECTS
Atelier Zündel Cristea
LOCATION
Champigny-sur-marne, france
CATEGORY
Clinic
PROJECT YEAR
2011
AREA
6200.0 m²
PHOTOGRAPHS
Stéphane Chalmeau
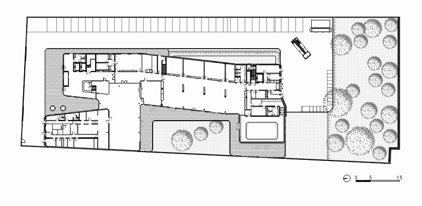
The construction site is located at 34, rue de Verdun in Champigny-sur-Marne, France. The Hospital accommodates 90 beds with 10 additional beds for day patients.
Developed to a length of 75m by a 17,5m width, the project is composed of four floors and a partial basement. The building is situated in the center of the site along the north-south axis.
It is set back around 10m from the street so as to leave space for an entry courtyard. It is also set back about 12 meters from its surrounding neighbors.
The rooms and living spaces are oriented east-west. The facades are in ribbed, pre-enameled steel siding. The building is surrounded with green spaces, a 38-space parking lot, and a 15-space two-wheel vehicle parking lot.
In accordance with an environmental approach in which targeting energy concerns became a priority, the project was enhanced by: insulation of the exterior; double air flow with heat recovery; a condensing boiler; high-performance double glazing.












