Francisco De Arruda School
PROJECT YEAR
2011
PHOTOGRAPHS
Laura Castro Caldas & Paulo Cintra, João Morgado
Text description provided by architect.
It is a project within the “School Modernization Program” sponsored by the Parque Escolar, for a school originally designed by architect José António Pedroso in 1956.
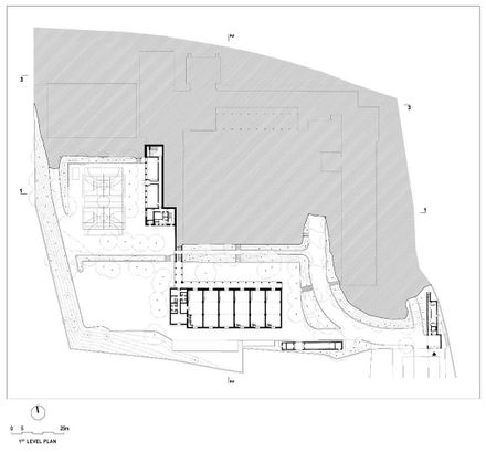
The three bodies that constitute the school are situated on the hillside in the continuity of the Faculty of Agronomy fields, overlooking the district of Alcântara.
The original building, spread across three platforms pragmatically modelled on the hill, is organized around a central patio and has three bodies each with its own functions - teaching, administration, and covered playground; gym and cafeteria; workshops - linked through covered outdoor galleries.
These bodies, with very different shapes, were taken by us as if they had been built over time, making a little city. Our project quietly continues this process.
For the outdoor areas, of unusually generous dimensions, the project underlines the continuity of the vegetation of the fields through new plantations, in order to emphasize the sense of the site as a public garden.
The staircase that we designed, opening an existing cul-de-sac to connect the central patio to the old Patio das Caravelas situated on the top platform.
As well as the direct connection created between the new library and the sports fields across the covered playground, are both transformations that help to emphasize the sense of the whole as a public garden and profoundly shape the daily living in the school.
On the other hand, the original buildings are restored as well as adapted to new needs, through minimum interventions, particularly in the external form and the finishes of the interior spaces.
FINALLY, THREE NEW ELEMENTS ARE ADDED:
a) a long two-storey building completes the outline of the original patio.
It is discovered after a short path through the garden, as the new school entrance. Designed as a public gallery, meeting and study space, along the courtyard.
As a sheltered stoa - this building contains the new library on the ground floor and the new laboratories on the top floor, facing, eastward, the gardens of the school, the neighbouring fields and the city.
b) the spas are built under the old Pátio das Caravelas between the existing gym and the new covered sports field that is situated in one of the high platforms of the site;
c) the original main atrium, never used as one, is now the atrium of a small multipurpose room, designed as a garden pavilion, which the population of the school calls "magic cube".
Given the beauty of the original Francisco de Arruda School situation, once again the clear and direct words of João dos Santos served as a greater stimulus to the project: "What is important in education, first of all, is the natural and aesthetically harmonious environment in which it takes place."























