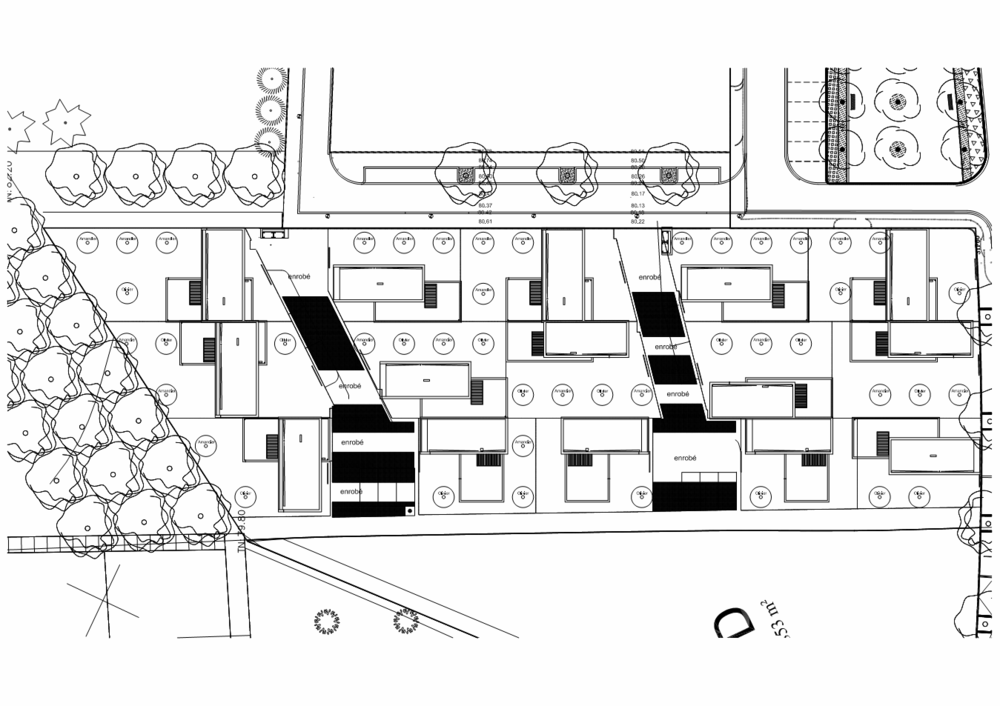
15 Housings
Text description provided by architect.
Is a 15 houses project in a new neighborhood in Montpellier (France). The ground floor of each house is a massive concrete block.
Opened on a private garden this itis the living part of the house. In the upper bloc are rooms and bathrooms.
Theses volumes, lighter, are cladded with wood and itsorientation allowsopening these boxes with large windows.
The greenery has been chosen to respect the Mediterranean climate, tocreate vegetal screens and natural shadow systems.












