ARCHITECTS
Monovolume architecture + design
CATEGORY
Office Buildings
LOCATION
Bolzano-Bozen, Italy
AREA
280.0 m2
CLIENT
Hans Klotz limited company
REALISATION
2010/11
PHOTOGRAPHS
Urlich Egger
Text description provided by architect.
Hans Klotz Ltd. is a long-established and successful wholesale company for fruit and vegetables with headquarter in Bozen-Sigmundskron. The new offices should be integrated into an existing building on the company area. To confer an independent character, the necessary spaces were added as an autonomous, two storey volume above the existing ground floor as a kind of architectural parasite.
The new building takes up the roof lines of the old, then distorting them to open the volume on the north and west side, towards huge apple plantations.
Hence the new construction allows an optimal orientation of the office spaces to the north, combined with a great outlook.
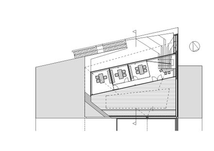
The first floor contains two open space offices, the entrance and reception, as well as small secondary rooms. An ample stair along the glass façade connects the internal and the external spaces as well as the storys with each other.
The second floor is conceived as a gallery with a cafeteria opening towards a roof terrace.
There are also a conference room and two private offices.
The new administrative building will be wrapped by a gleaming skin, which at the same time quotes the old roof and underlines the new building's independence.


































